Images for illustrative purposes only. You’re viewing pricing based on building in your selected build zone. Selected areas may incur an area-specific surcharge for Knockdown Rebuild projects. Contact a New Homes Consultant for specification details & more information.

Ascot 39

Display Home - Alamora Estate

16 Monferrato Ave, Tarneit

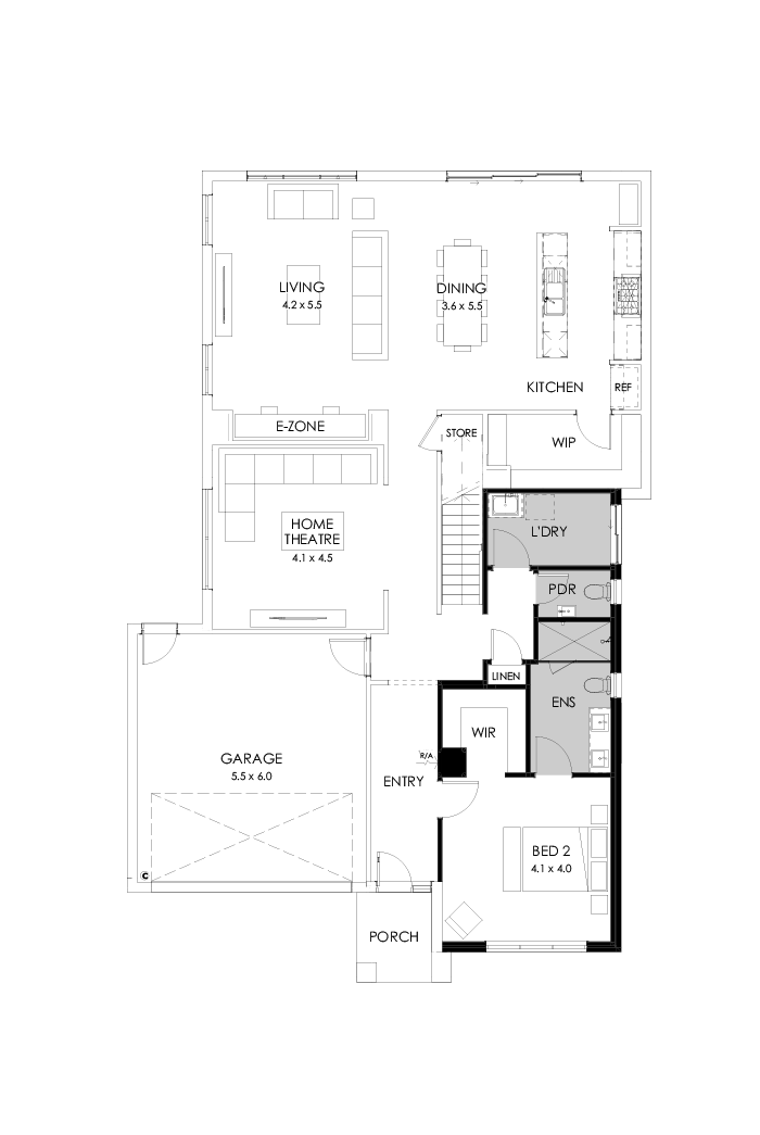
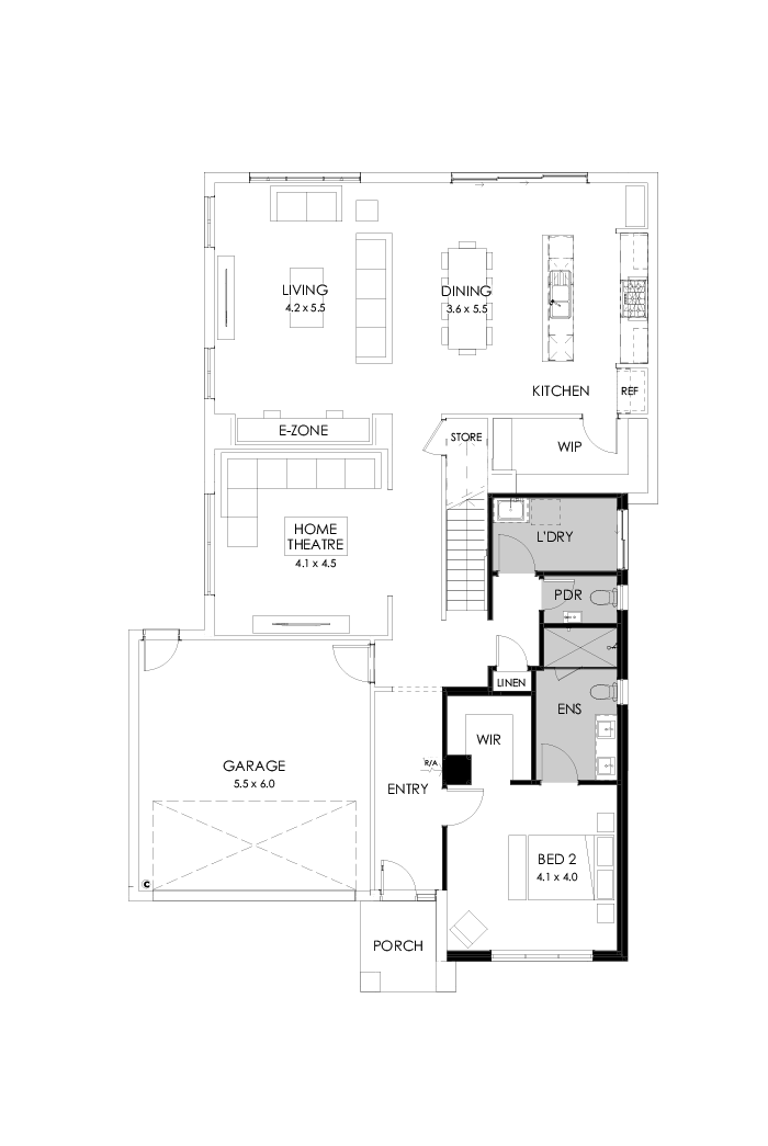
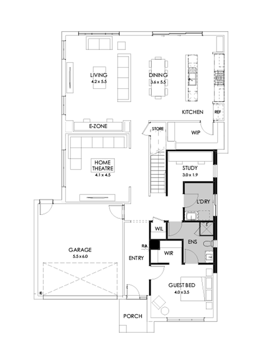
Socialise downstairs and escape upstairs to unwind – the Ascot has living options to suit every mood.

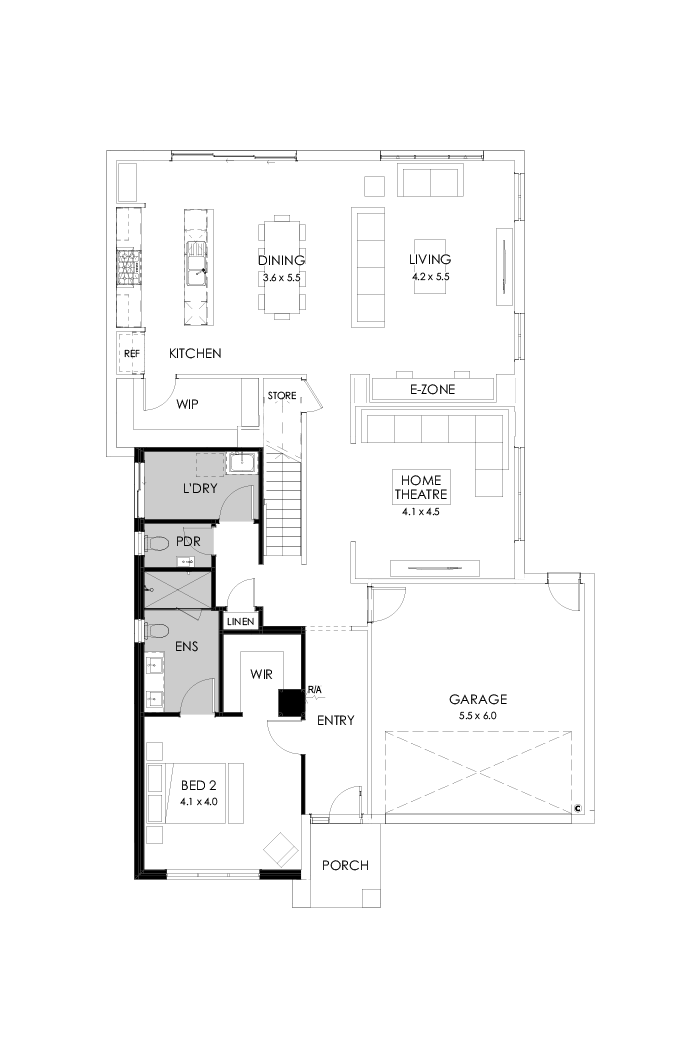
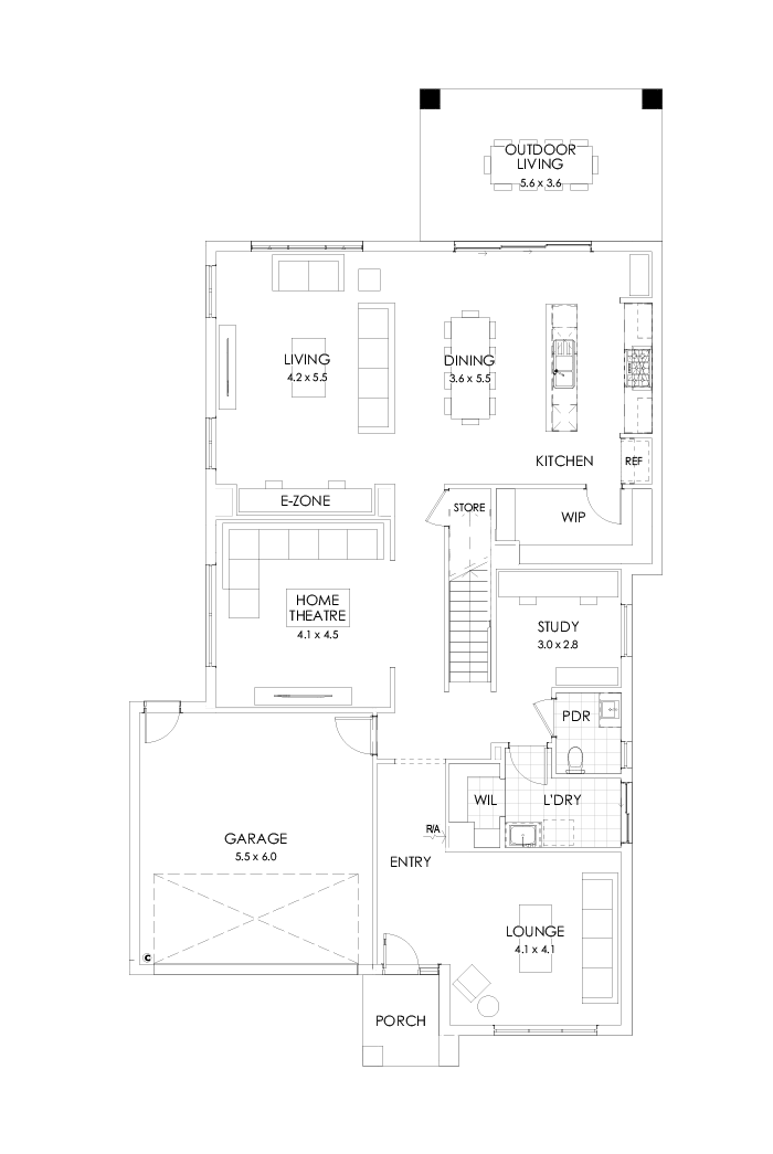
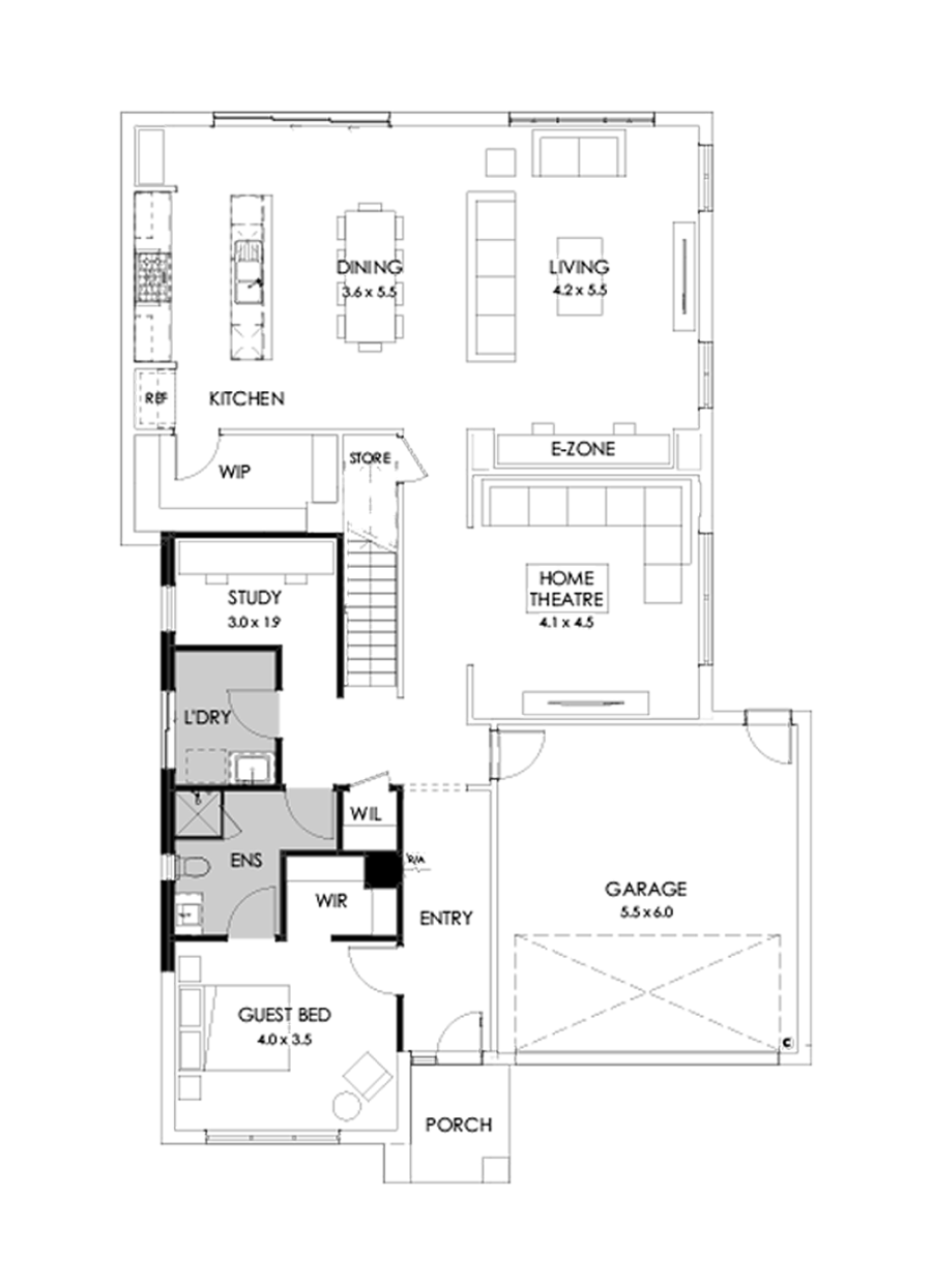
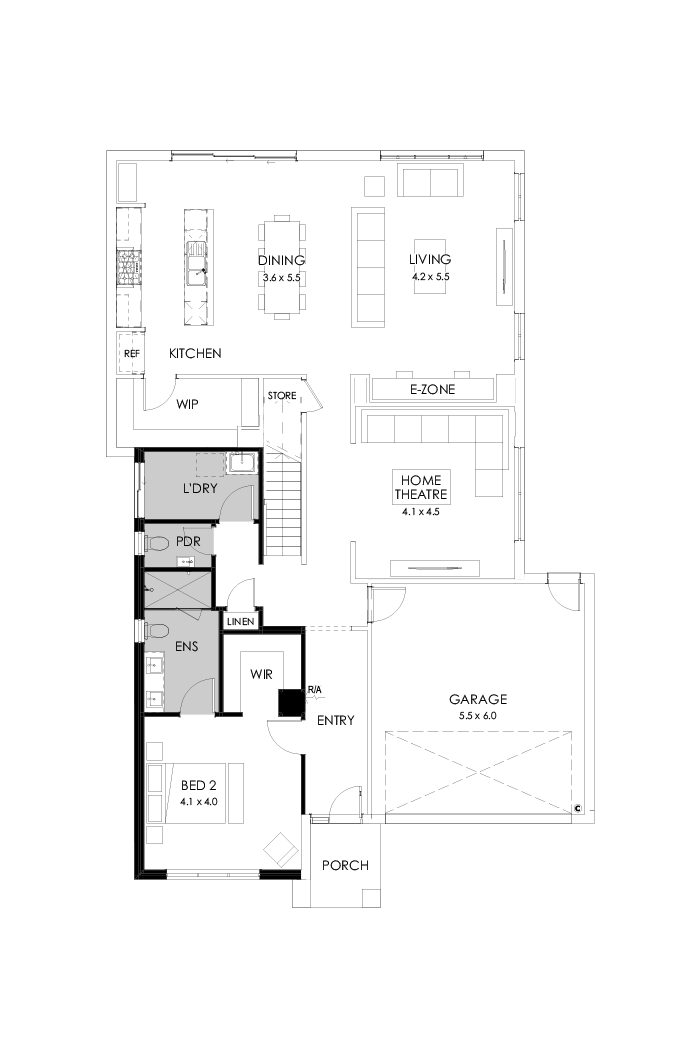
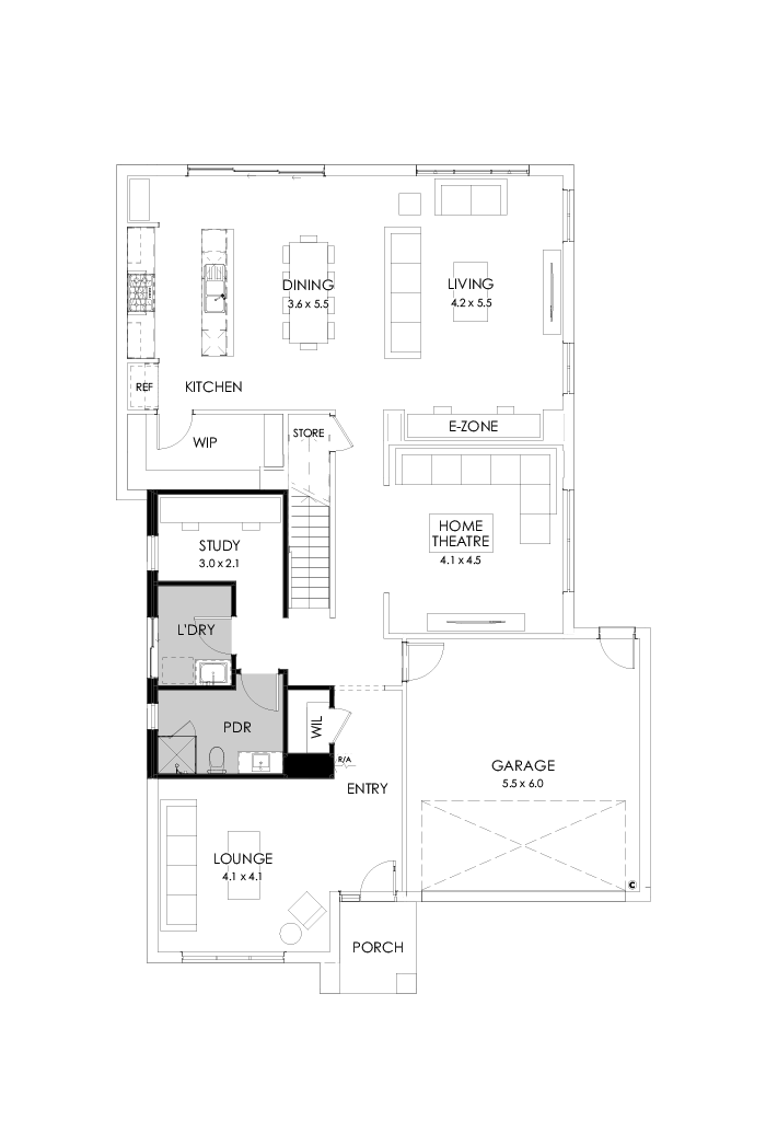
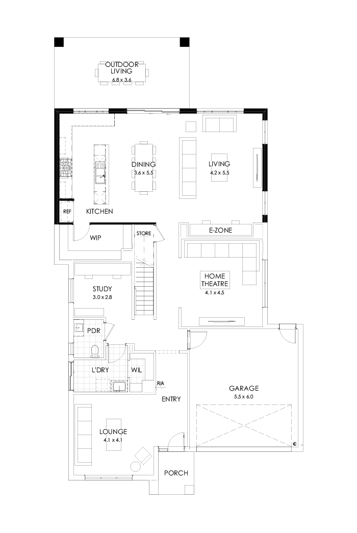
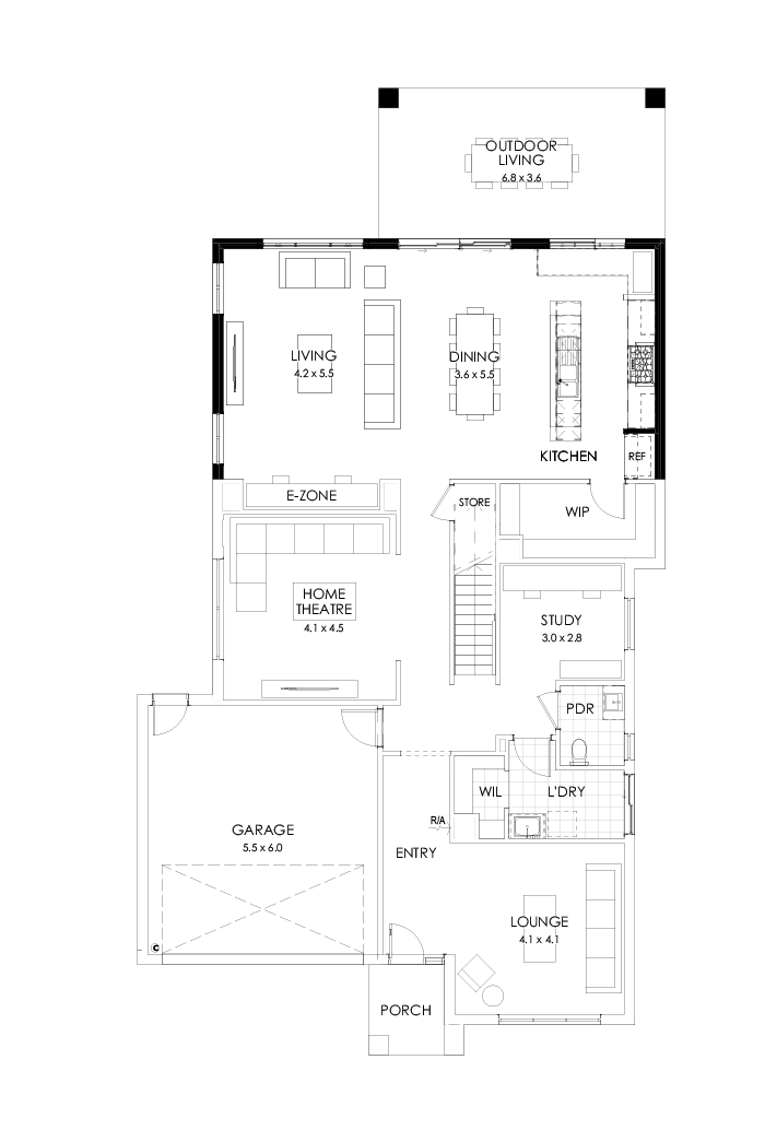
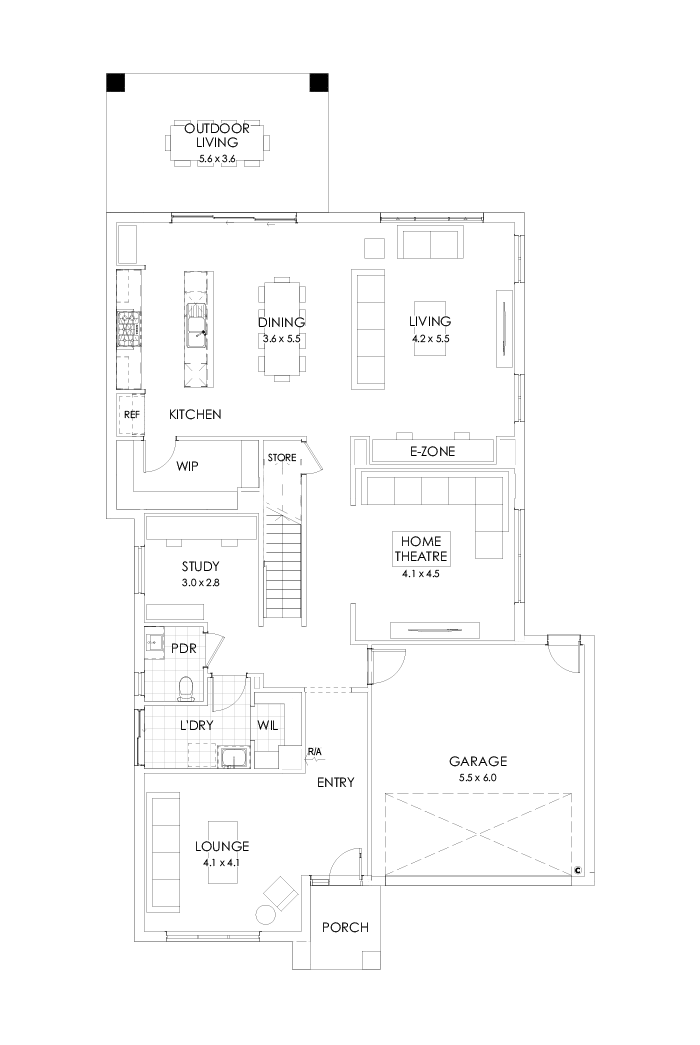
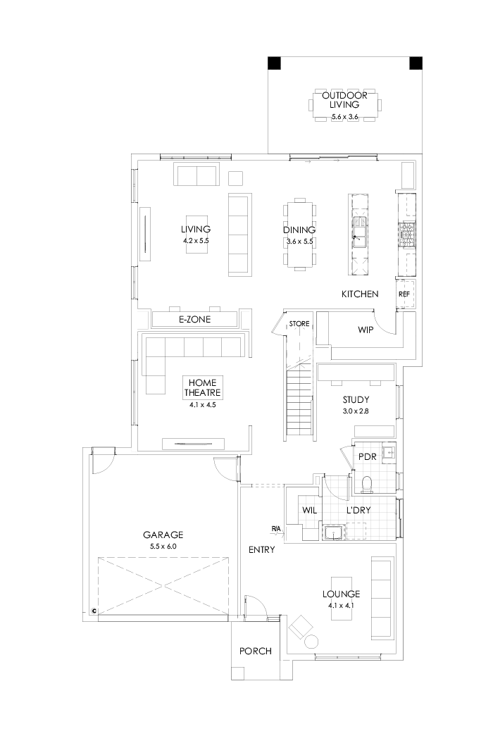
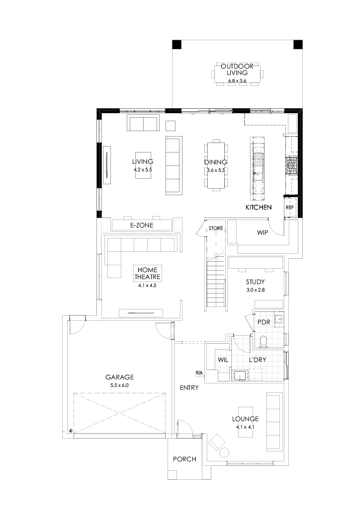
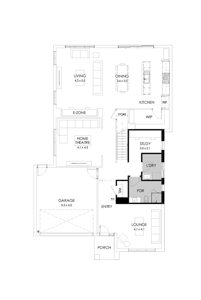
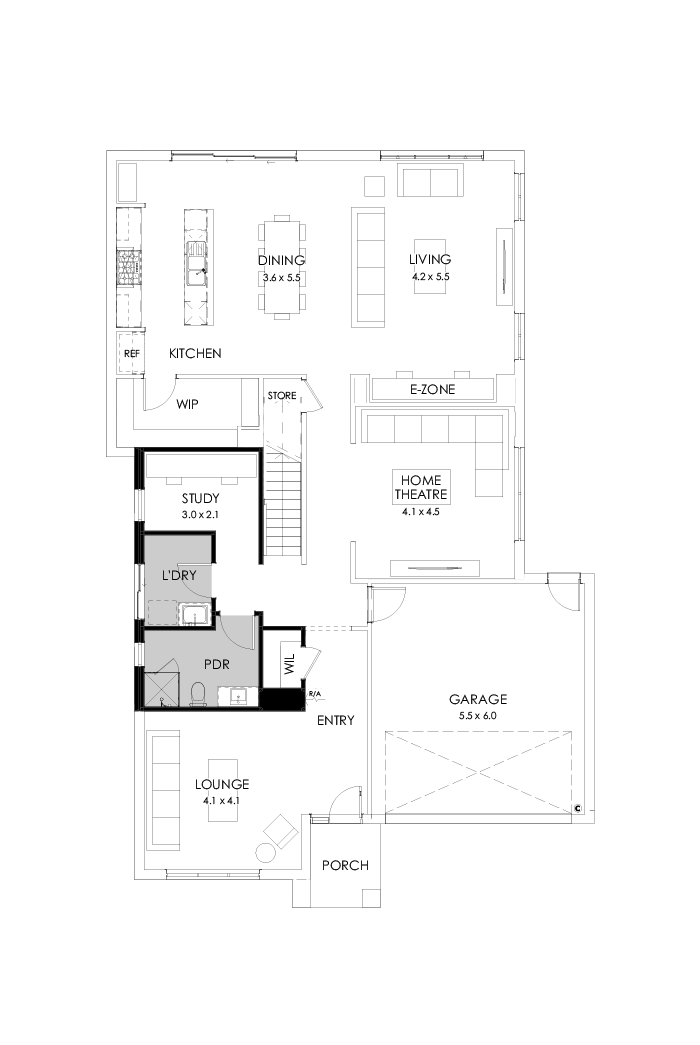
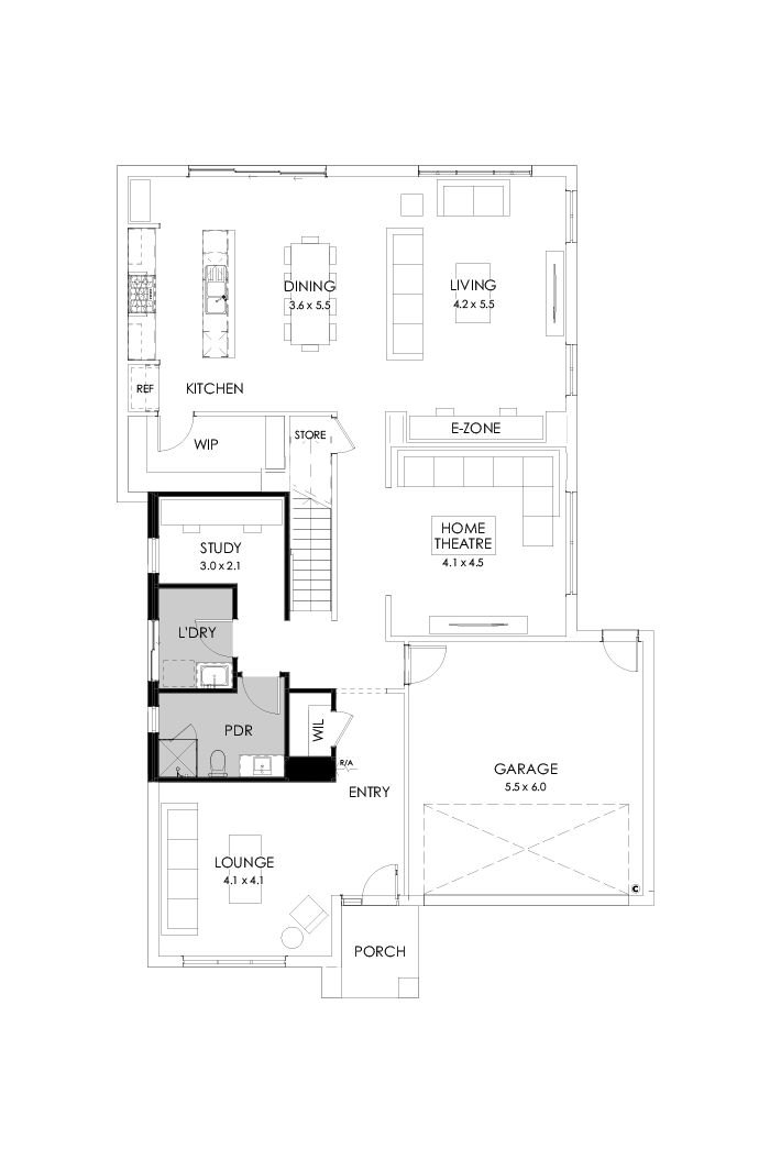
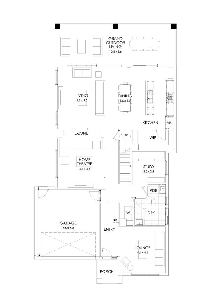
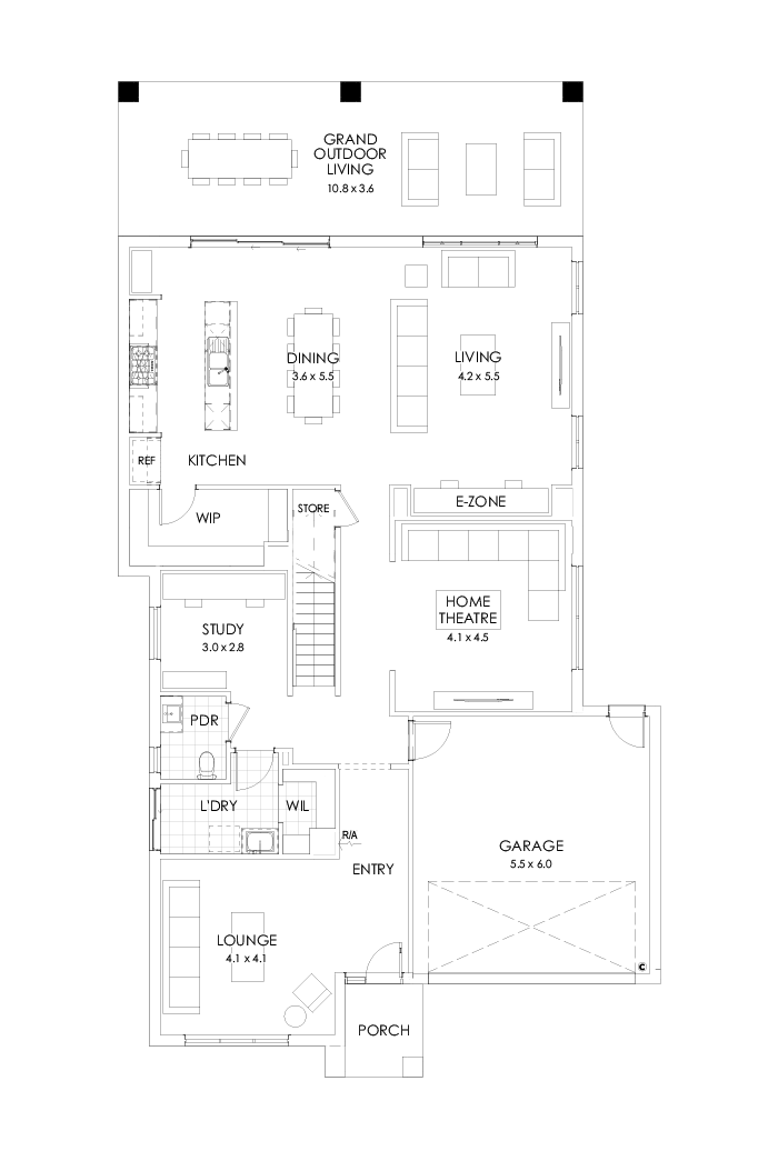
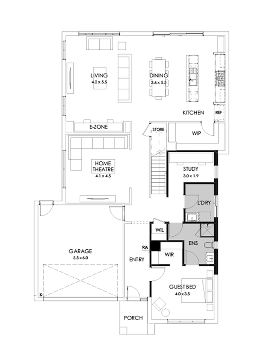
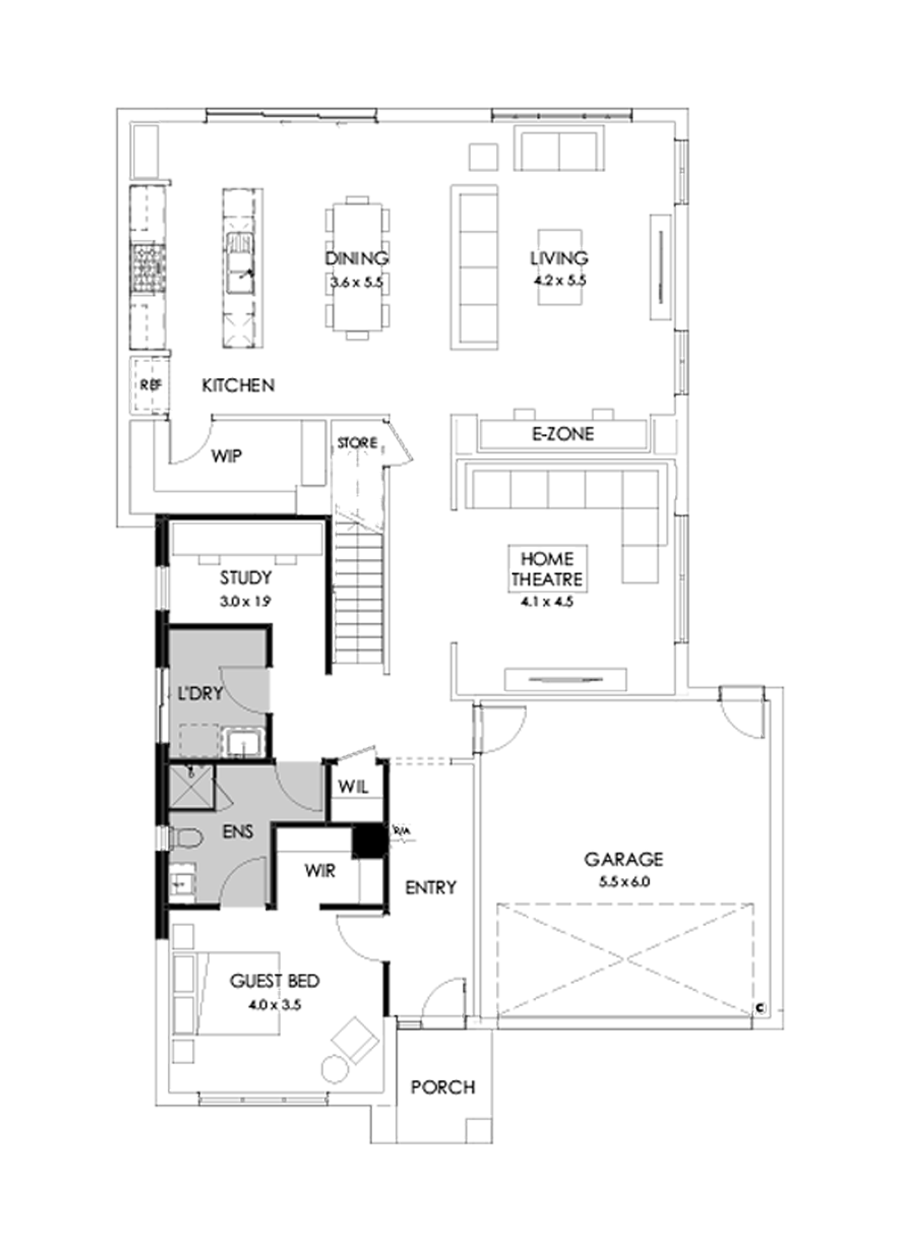
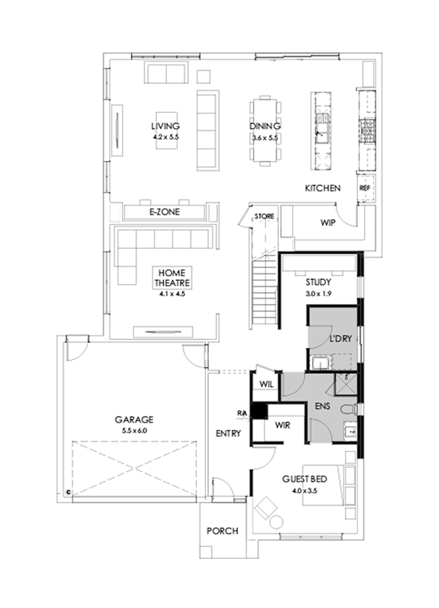
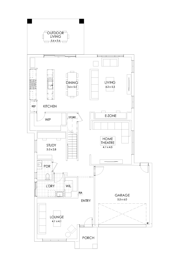
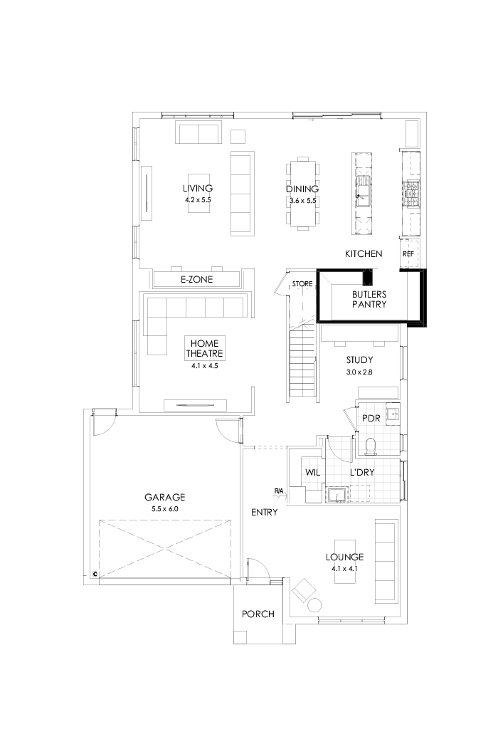
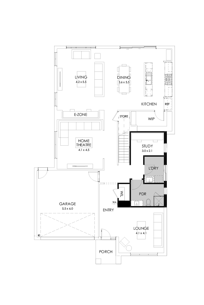
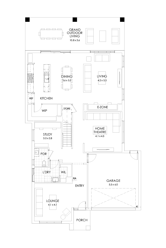
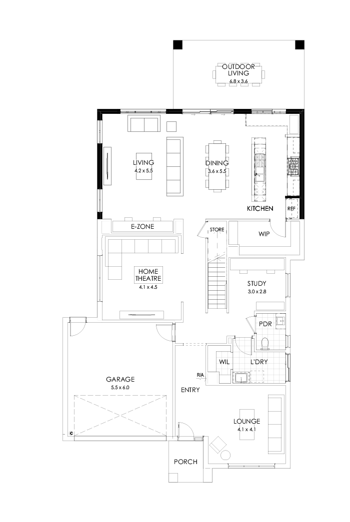
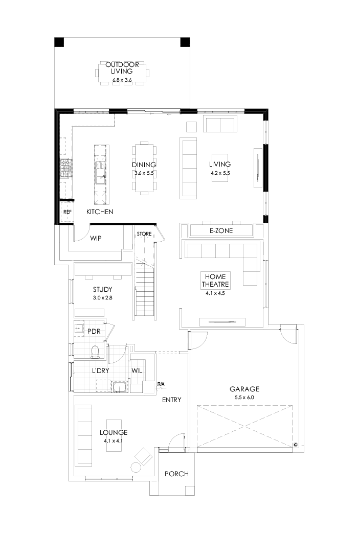
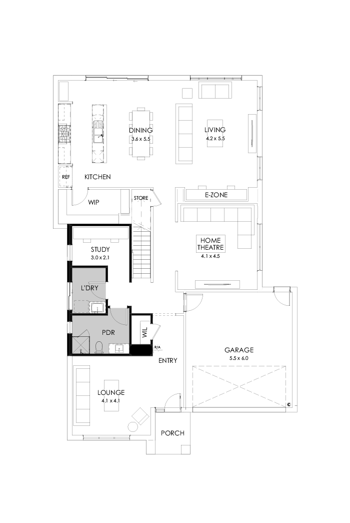
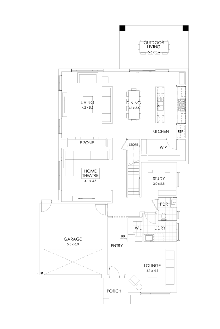
The Ascot is a grand statement with the entrance leading to a light-filled office or lounge.  From there, choose how sociable you feel – stretch out in the downstairs home theatre or convert the theatre to a formal dining room for a touch of glamour.

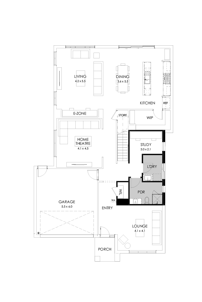
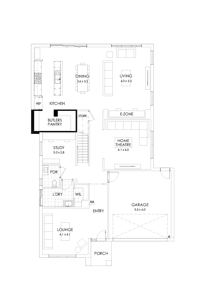
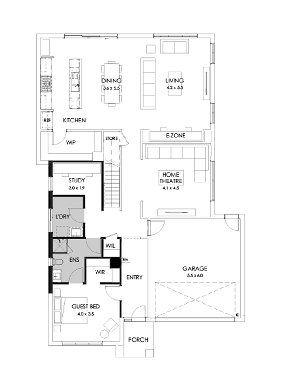
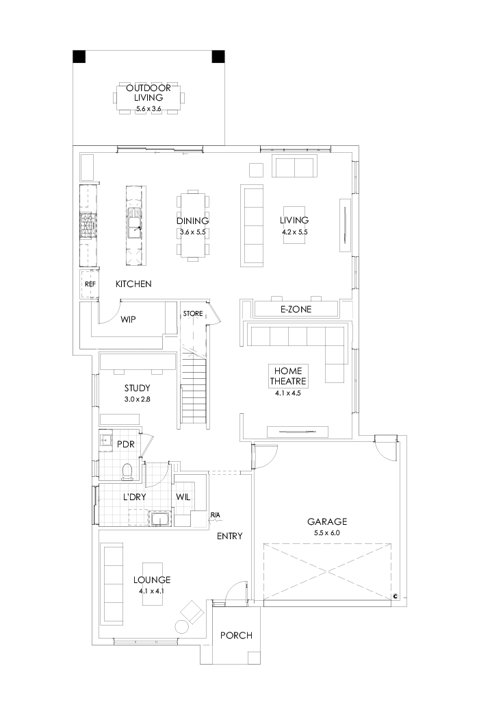
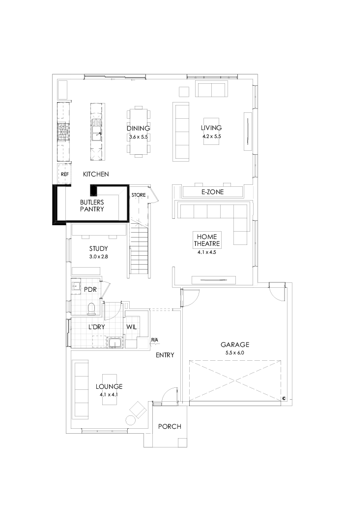
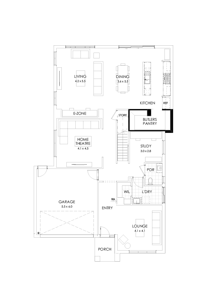
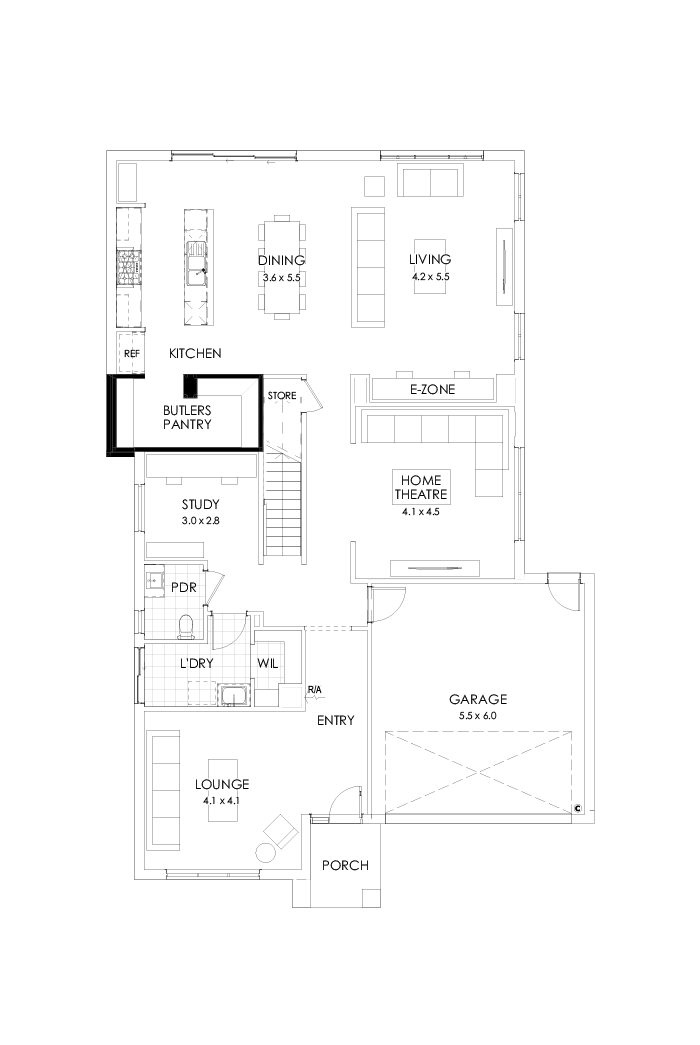
Behind the airy laundry with optional walk-in linen closet is a kitchen with an even more generous walk-in pantry. As you cook, dine and mingle with family and friends, the Ascot’s open-plan living zone helps keep the conversation flowing.

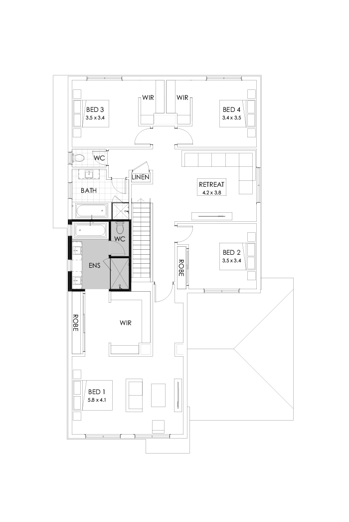
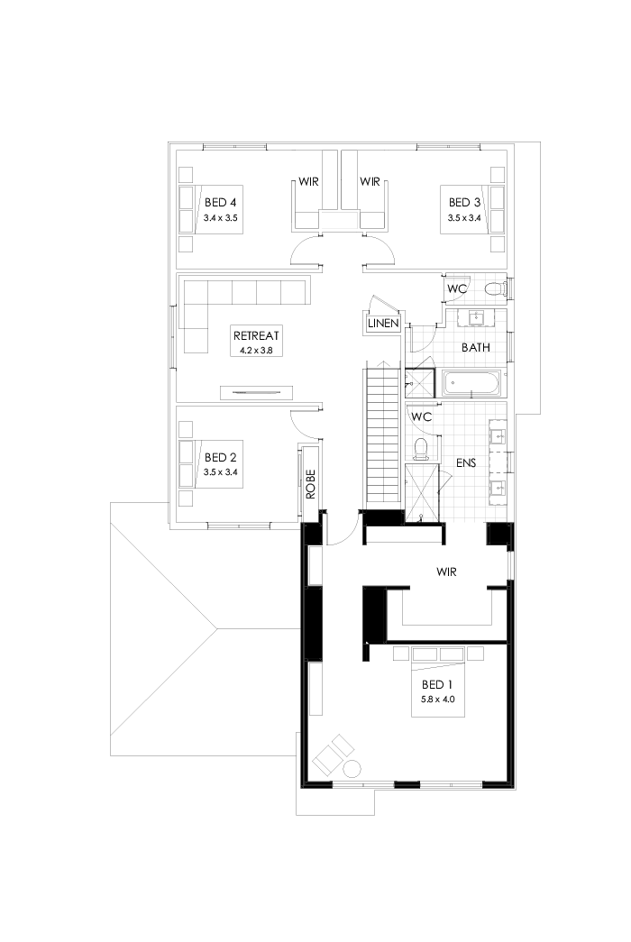
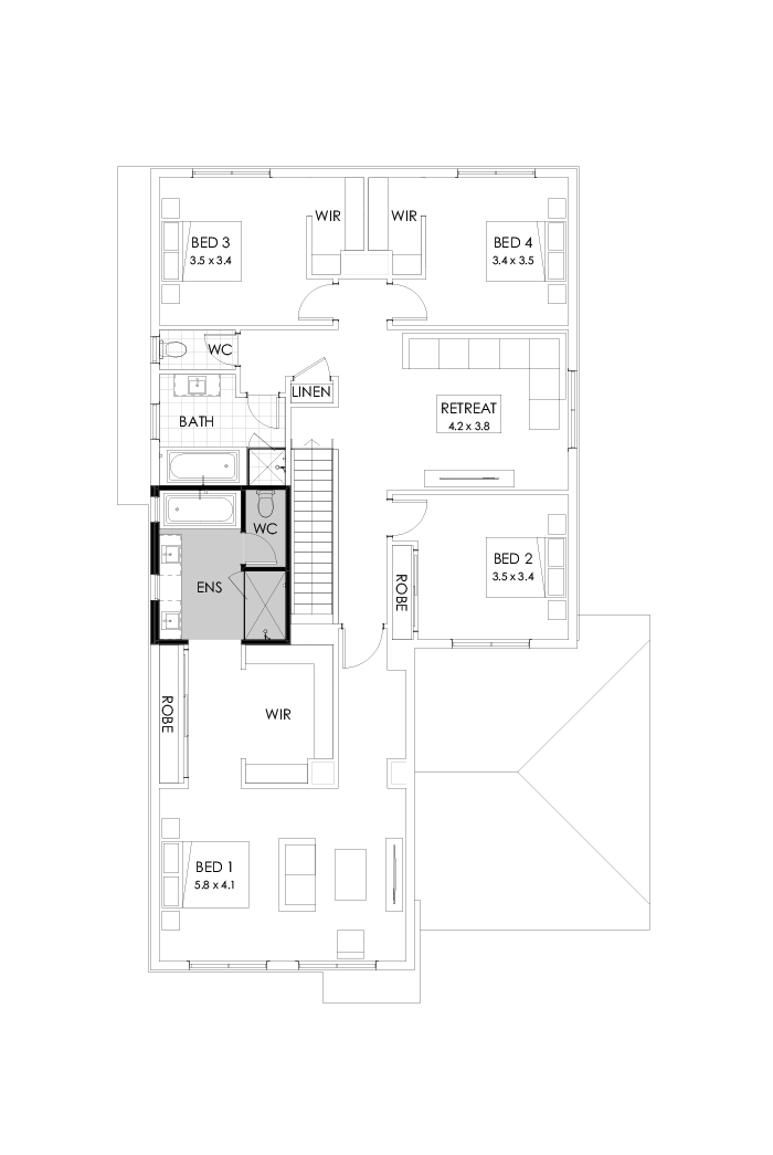
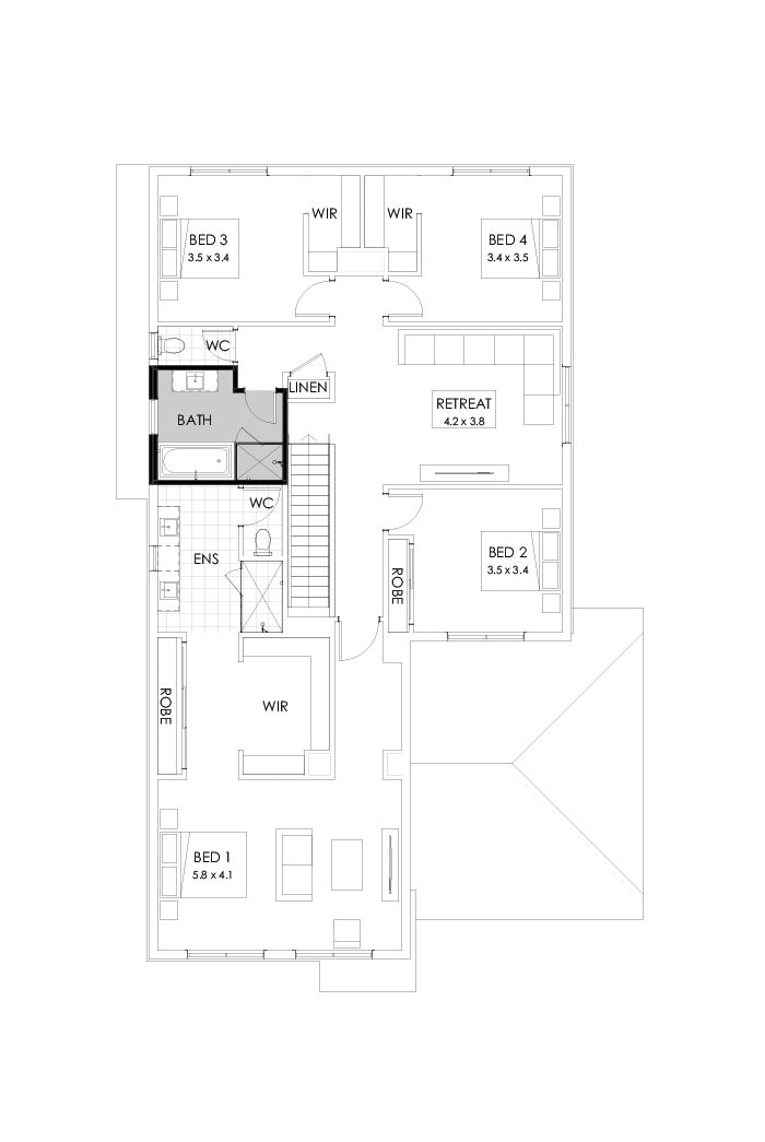
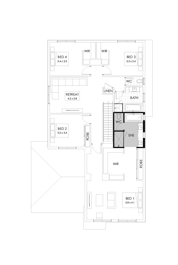
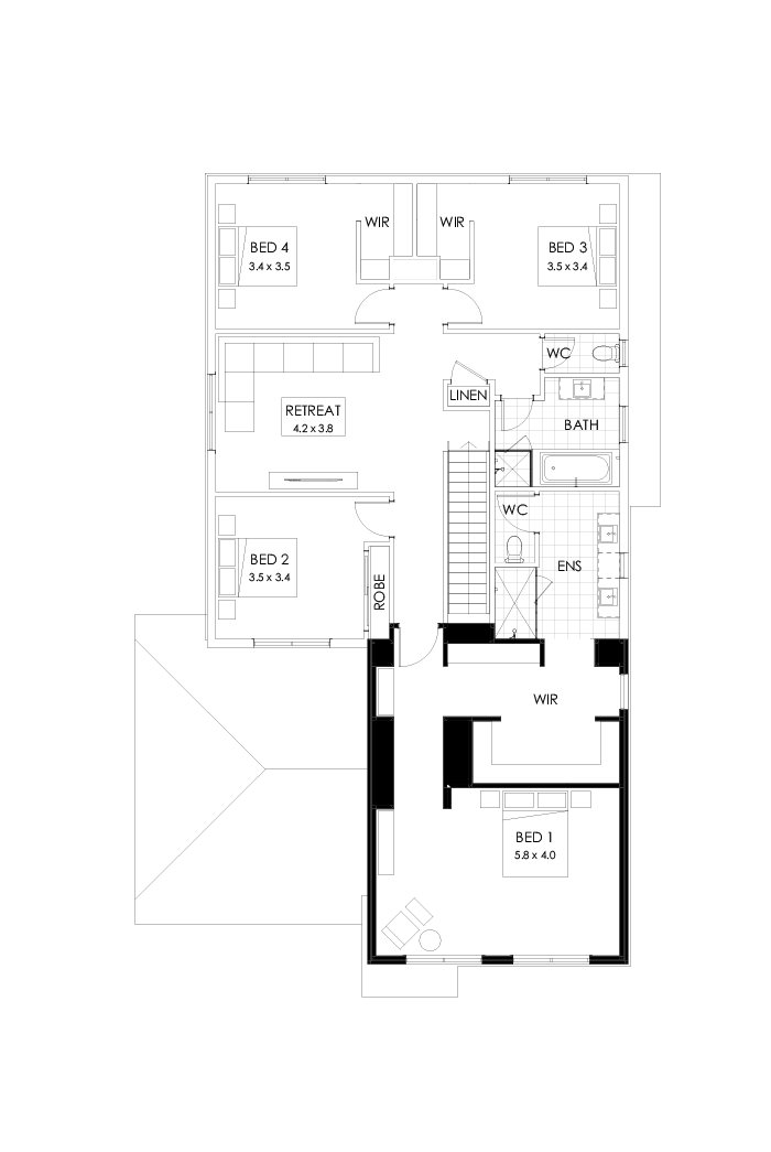
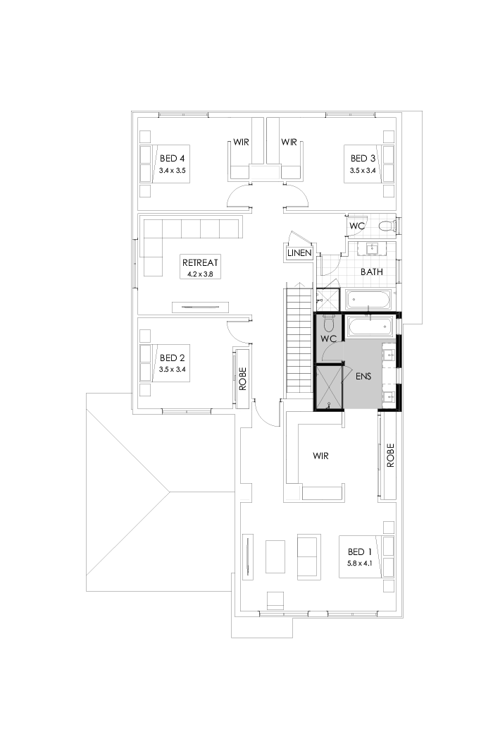
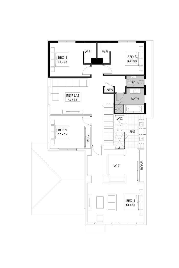
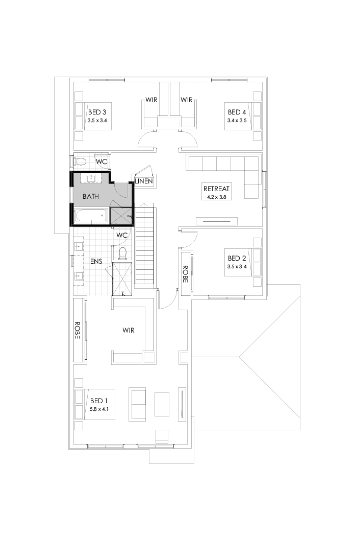
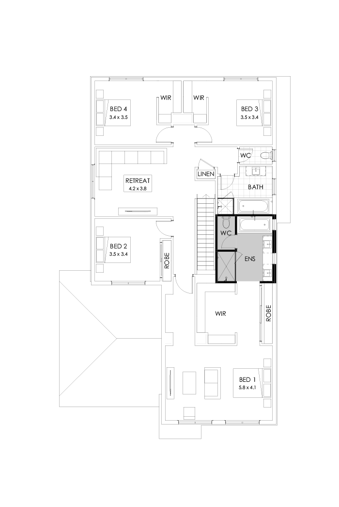
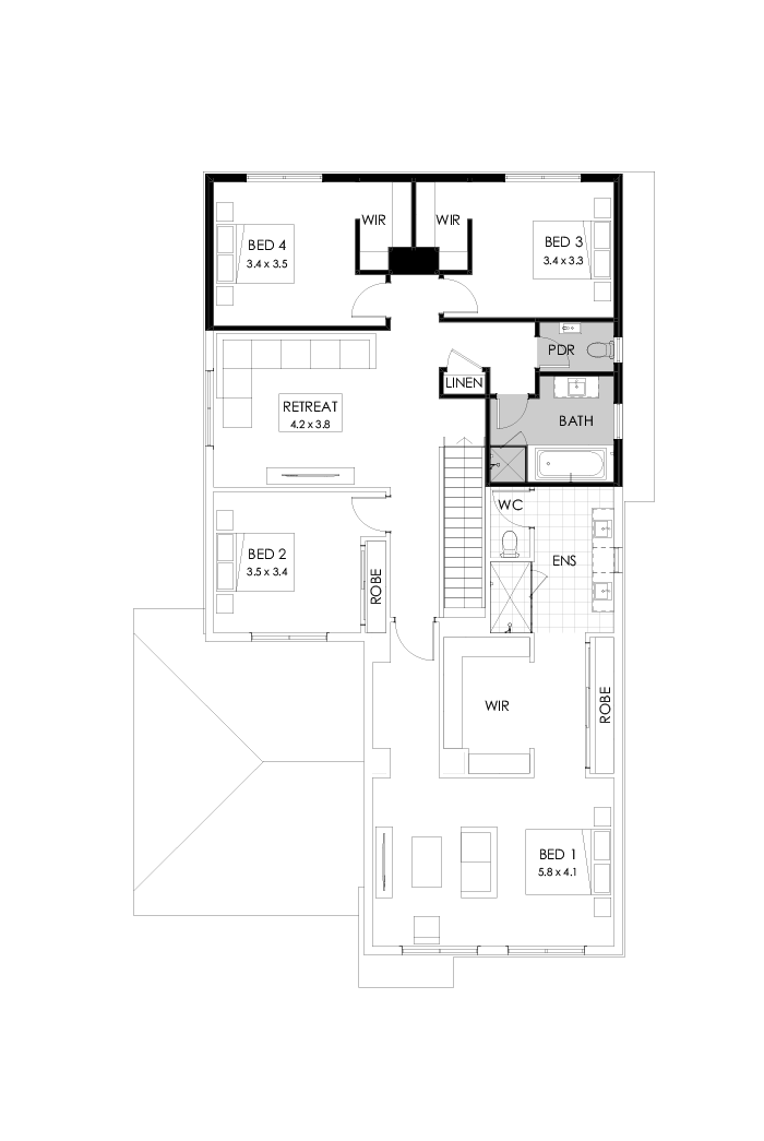
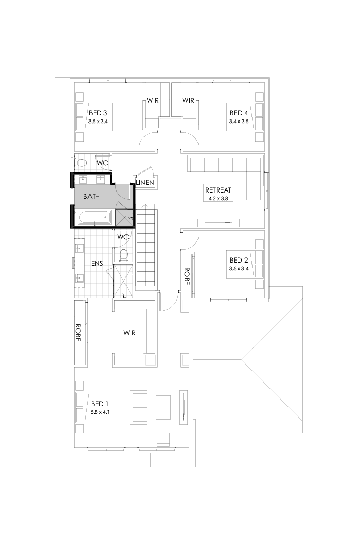
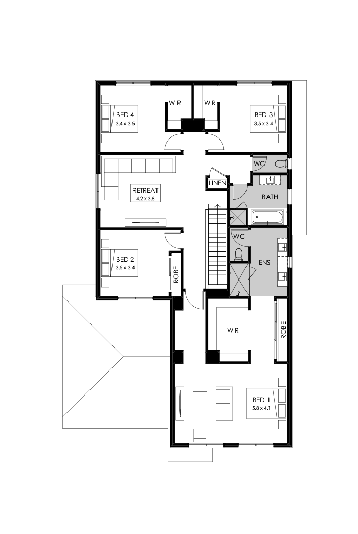
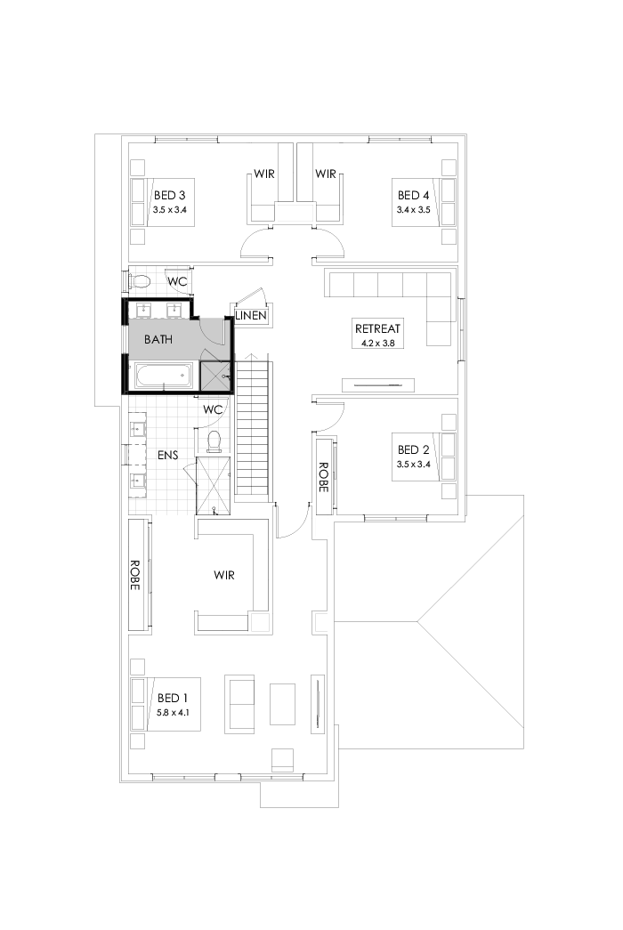
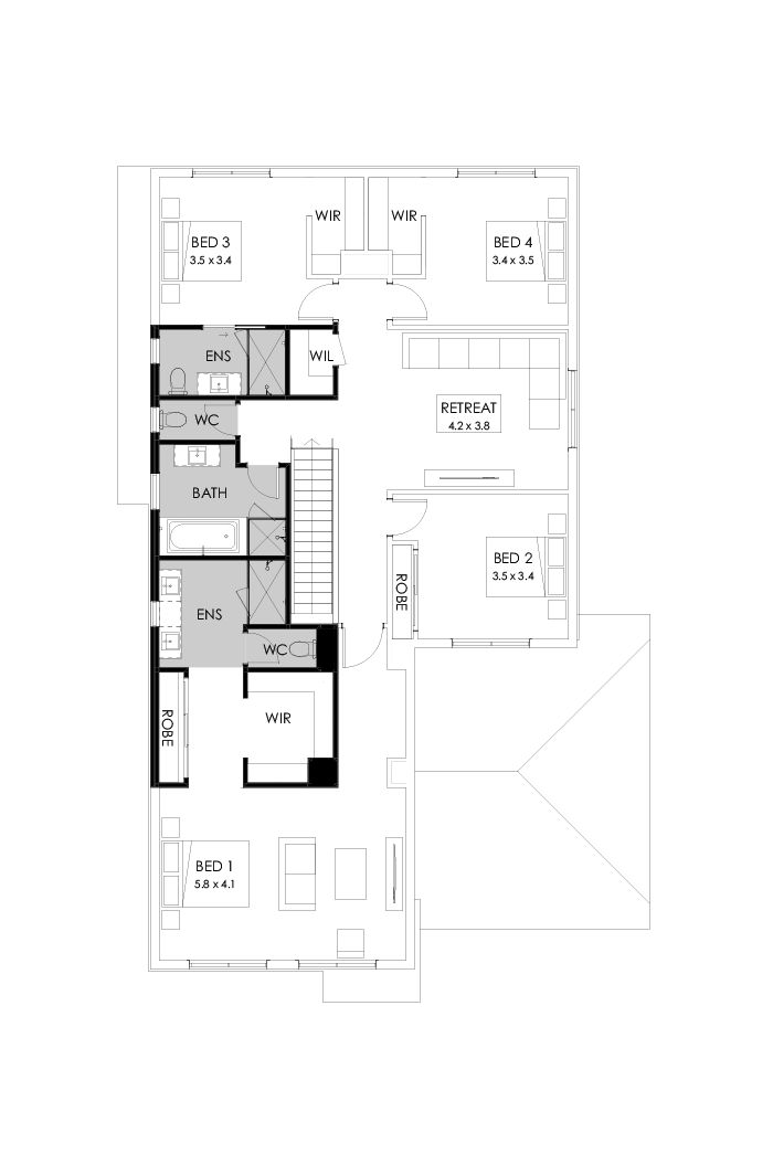
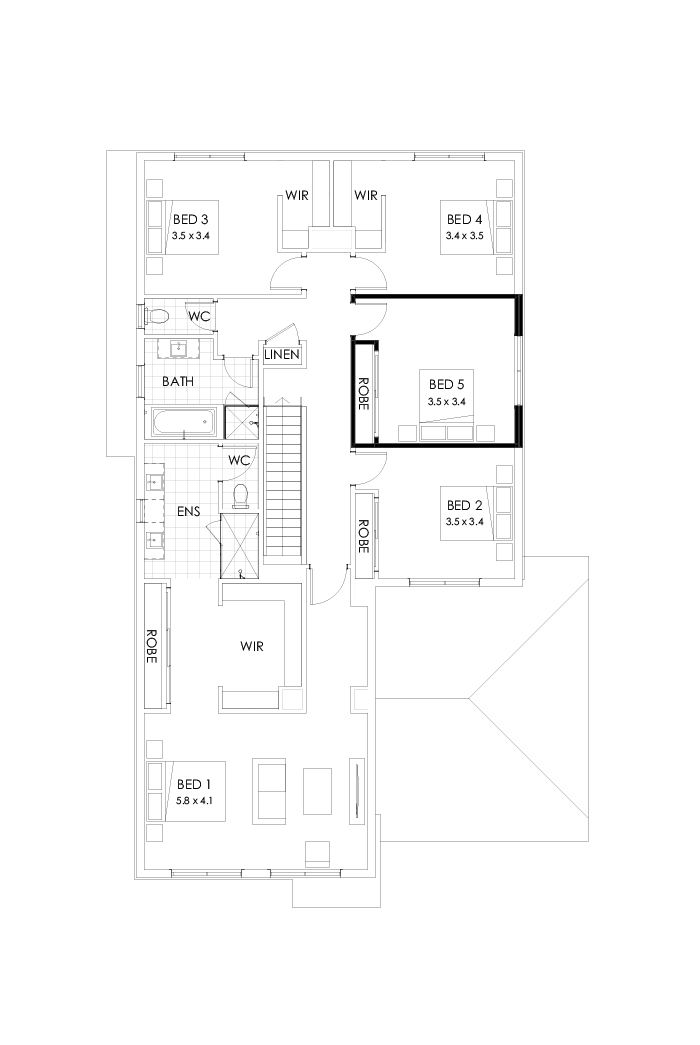
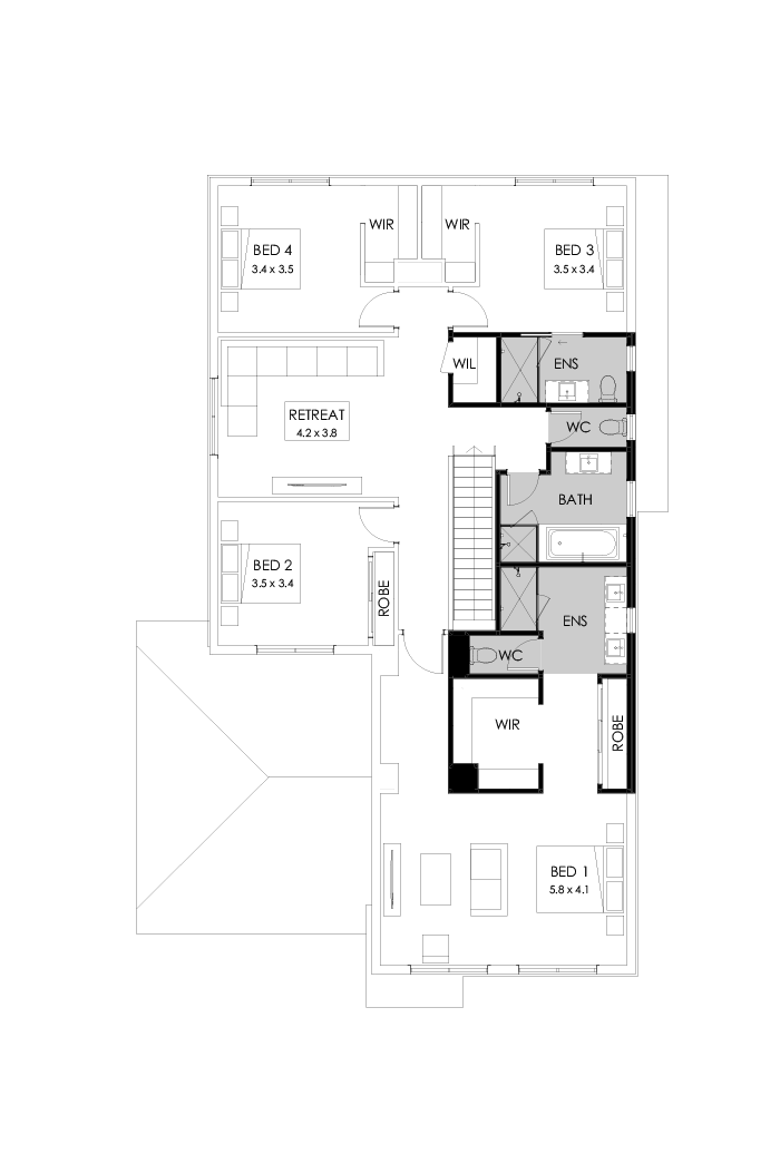
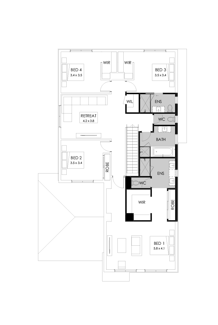
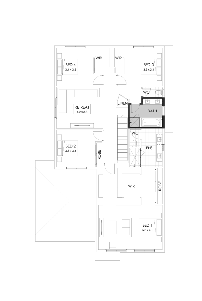
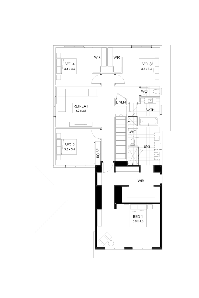
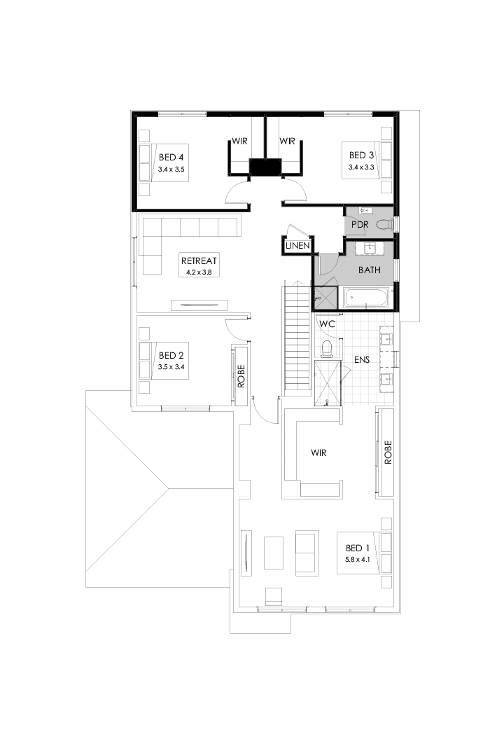
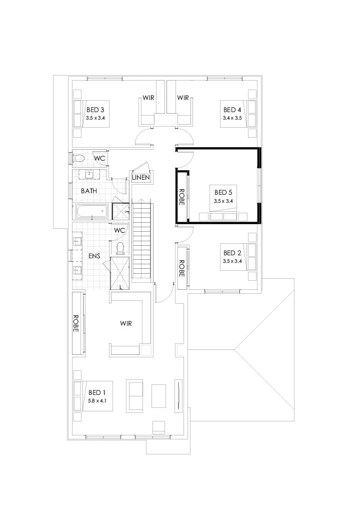
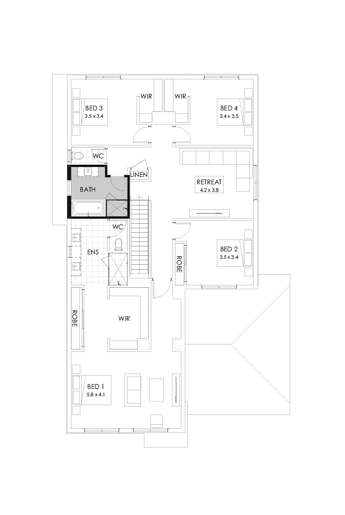
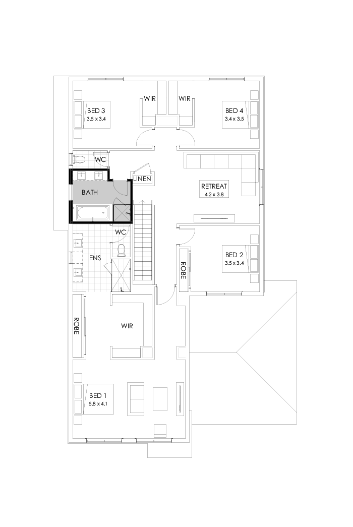
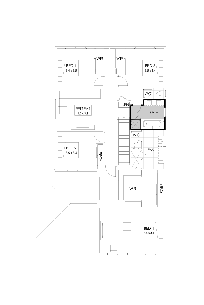
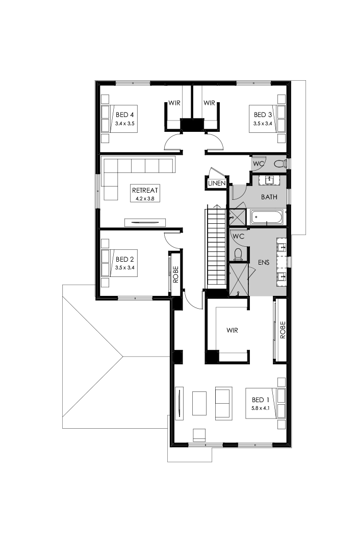
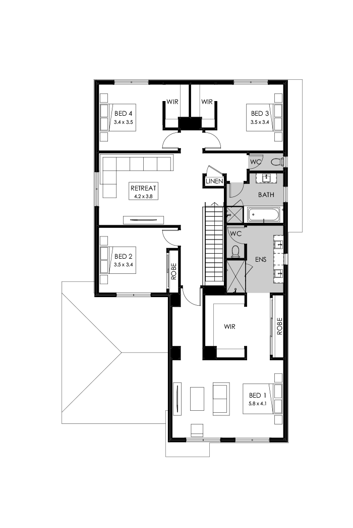
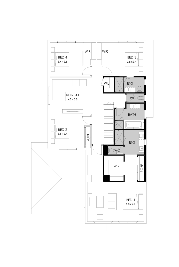
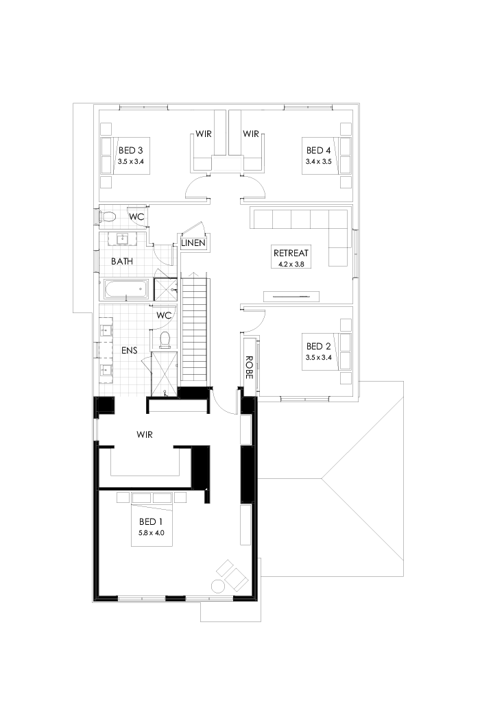
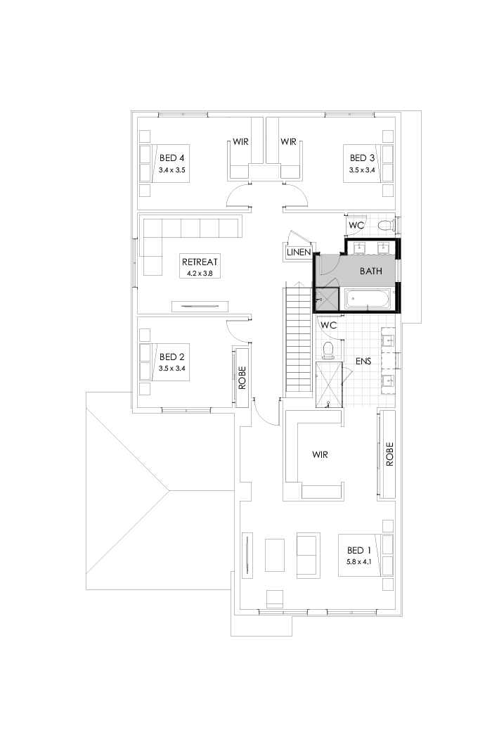
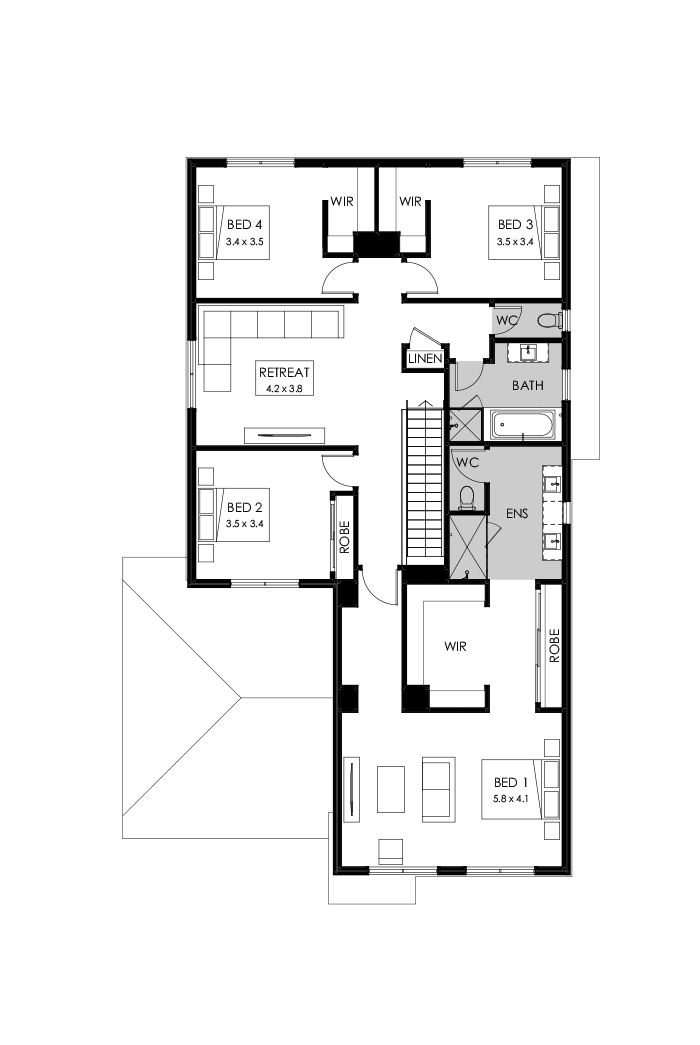
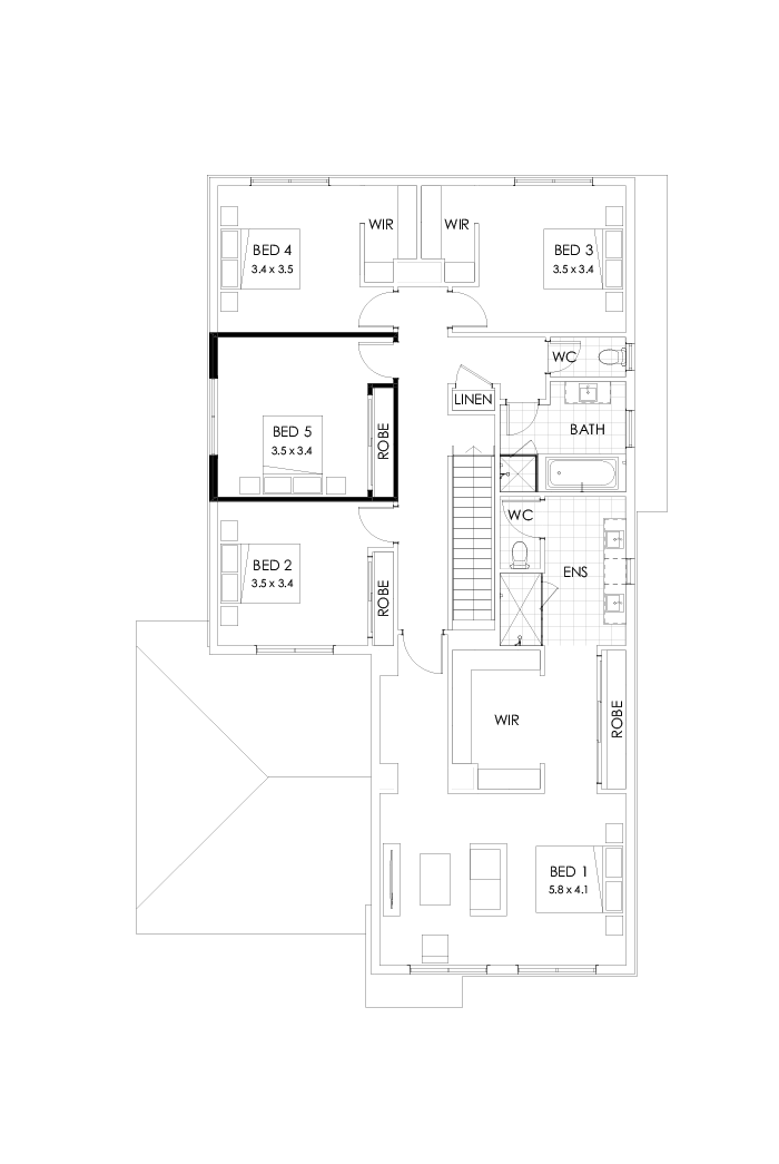
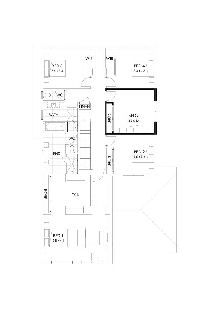
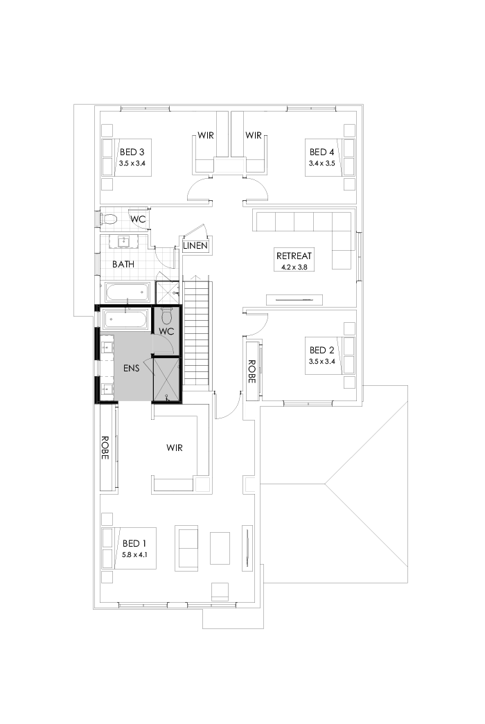
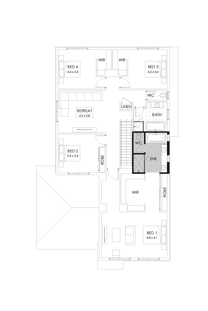
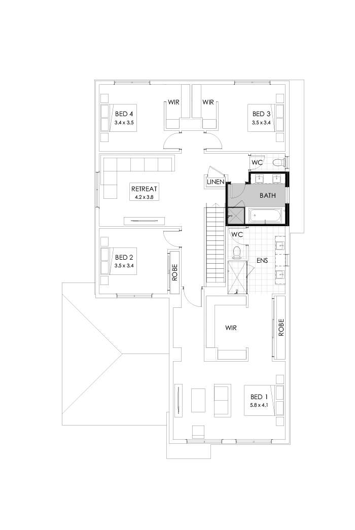
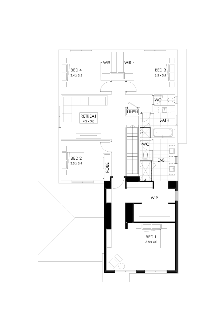
Upstairs, the first floor provides a family chill-out zone. The oversized master bedroom features a walk-in robe and well-appointed ensuite. Three more bedrooms, organised around a central bathroom to maximise privacy, can be customised to your family’s needs with walk-in robes or study spaces.

 

This display home is compliant with the National Construction Code 2019 and does not reflect items that apply to all new homes in line with the National Construction Code 2022, such as Livable Housing Design and 7-star energy efficiency requirements. Please contact your New Homes Consultant for further information.

 

Enquire now to book an appointment

Sorry, we were unable to process your submission. Please try again.

By submitting this form you are consenting to receive marketing communications from Boutique Homes in future, on the understanding that you have read and agree to our Privacy and Data Collection Statement and that you can opt-out at any time.

Thank You!

A New Homes Consultant will be in touch soon

16 Monferrato Ave, Tarneit - Alamora Estate

Open Times

  • Monday

    12:00 – 5:00 PM
  • Tuesday

    12:00 – 5:00 PM
  • Wednesday

    12:00 – 5:00 PM
  • Thursday

    12:00 – 5:00 PM
  • Friday

    Closed
  • Saturday

    11:00 AM – 5:00 PM
  • Sunday

    12:00 – 5:00 PM
  • If you would like to book an appointment, please submit an enquiry or contact Rifa Fariha on 0435 462 382.
Book a personal tour Get Directions

Visit nearby display homes

4 Beds
2 Bath
2 Car
361.46m2 Total Area

Specifications

  • Home width 12.59m
  • Home length 19.55m
  • Min. lot width 14.00m
  • Min. lot length 28.00m

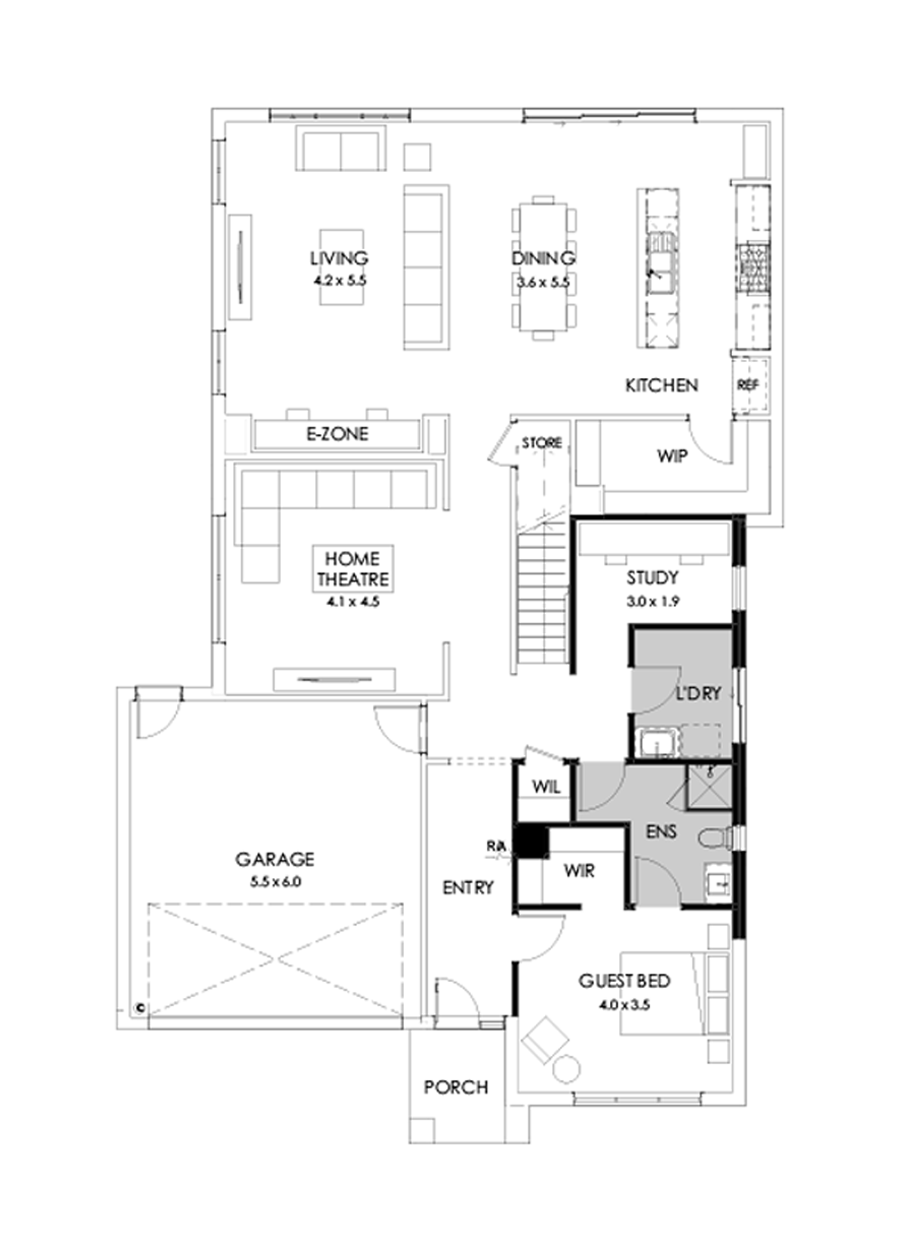
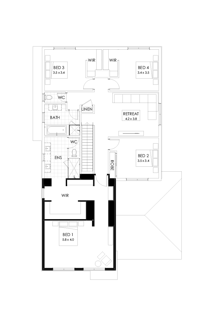
Ground Floor

39 Ground Floor Floorplan (Standard)

First Floor

39 First Floor Floorplan (Standard)

Ground Floor

39 Ground Floor Floorplan (Standard - Flipped)

First Floor

39 First Floor Floorplan (Standard - Flipped)

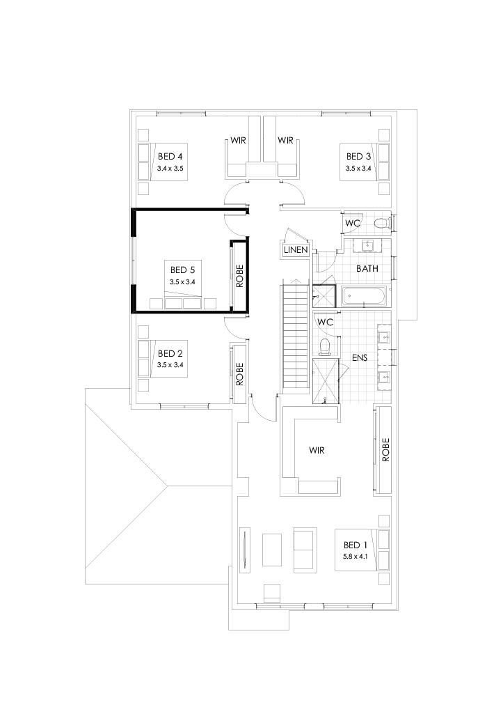
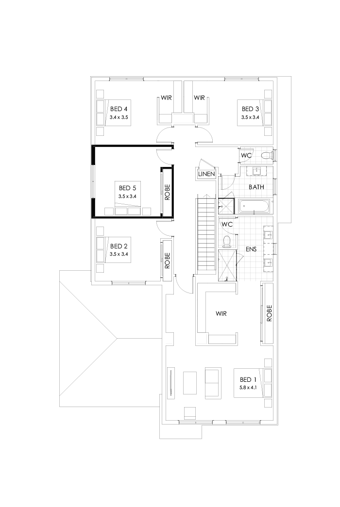
Ground Floor

39 Ground Floor Floorplan (5th bedroom)

First Floor

39 First Floor Floorplan (5th bedroom)

Ground Floor

39 Ground Floor Floorplan (5th bedroom - Flipped)

First Floor

39 First Floor Floorplan (5th bedroom - Flipped)

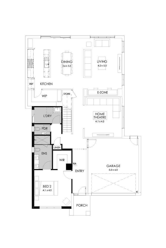
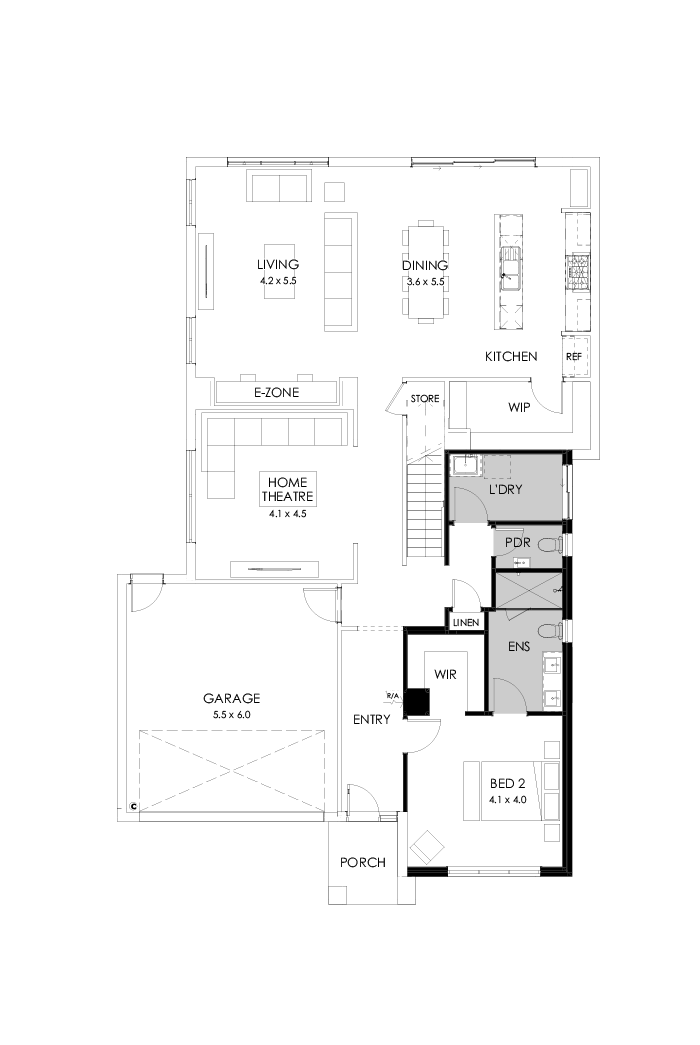
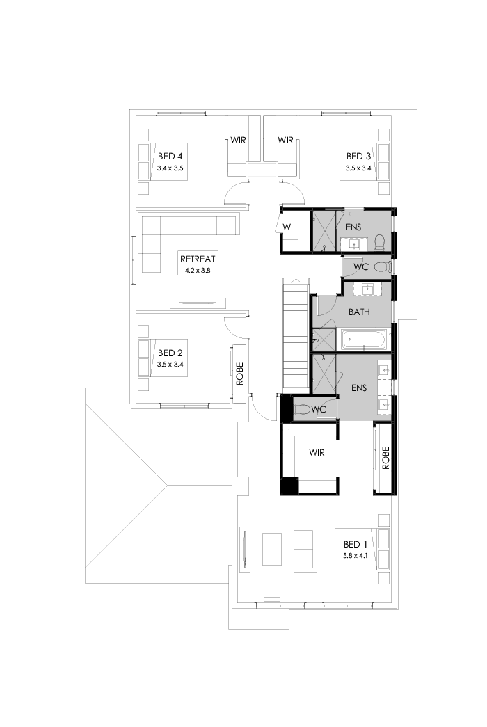
Ground Floor

39 Ground Floor Floorplan (Additional ensuite)

First Floor

39 First Floor Floorplan (Additional ensuite)

Ground Floor

39 Ground Floor Floorplan (Additional ensuite - Flipped)

First Floor

39 First Floor Floorplan (Additional ensuite - Flipped)

Ground Floor

39 Ground Floor Floorplan (Additional bed 1)

First Floor

39 First Floor Floorplan (Additional bed 1)

Ground Floor

39 Ground Floor Floorplan (Additional bed 1 - Flipped)

First Floor

39 First Floor Floorplan (Additional bed 1 - Flipped)

Ground Floor

39 Ground Floor Floorplan (Alternate bed 1 )

First Floor

39 First Floor Floorplan (Alternate bed 1 )

Ground Floor

39 Ground Floor Floorplan (Alternate bed 1  - Flipped)

First Floor

39 First Floor Floorplan (Alternate bed 1  - Flipped)

Ground Floor

39 Ground Floor Floorplan (Bath to ensuite)

First Floor

39 First Floor Floorplan (Bath to ensuite)

Ground Floor

39 Ground Floor Floorplan (Bath to ensuite - Flipped)

First Floor

39 First Floor Floorplan (Bath to ensuite - Flipped)

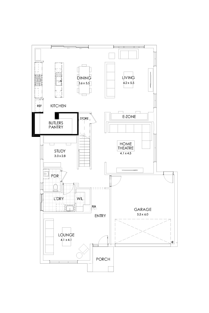
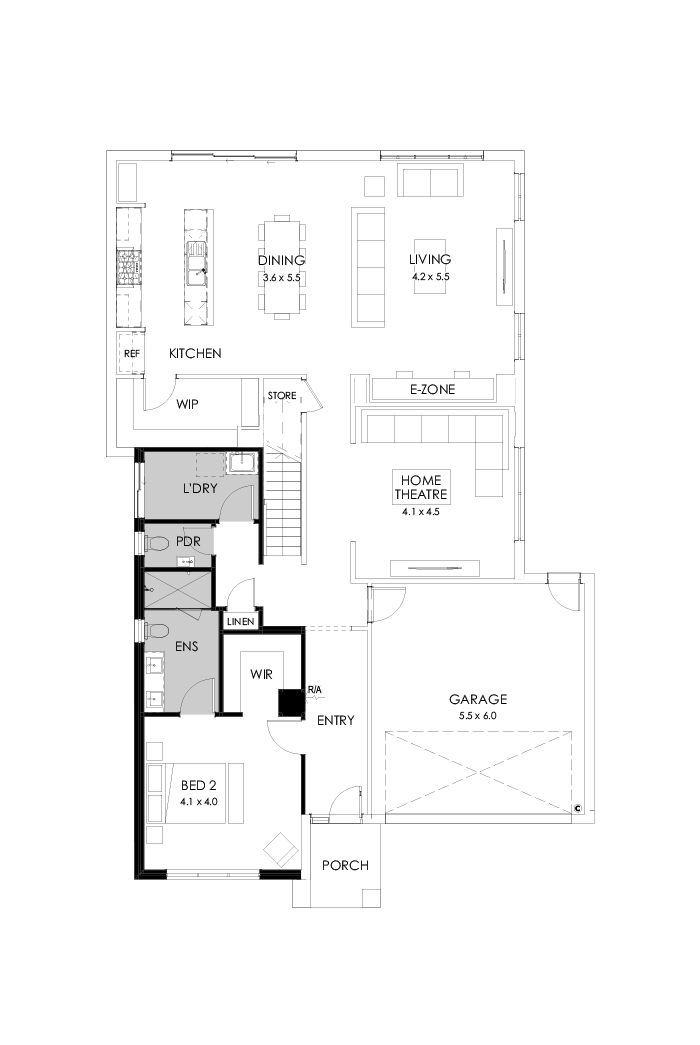
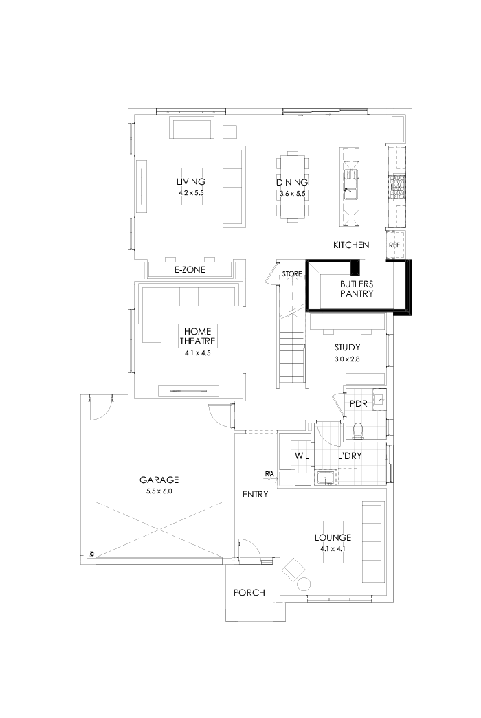
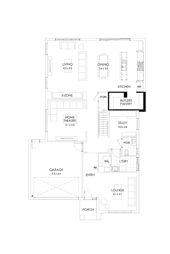
Ground Floor

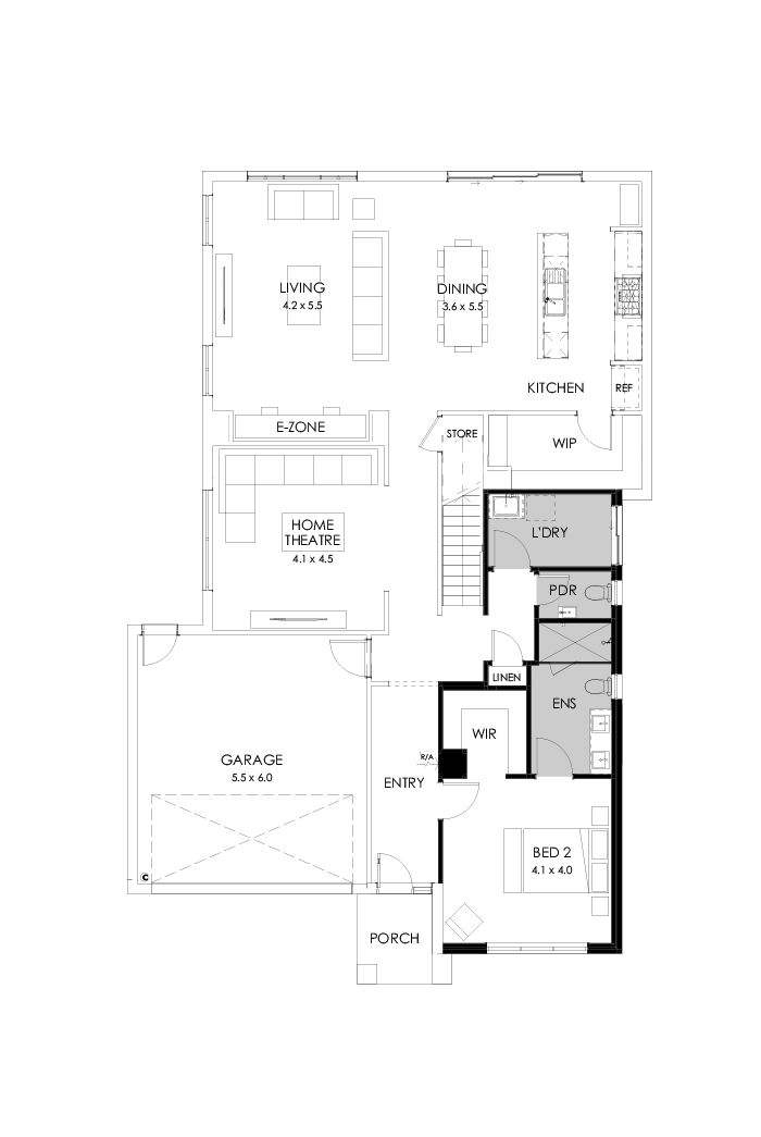
39 Ground Floor Floorplan (Butler's Pantry)

First Floor

39 First Floor Floorplan (Butler's Pantry)

Ground Floor

39 Ground Floor Floorplan (Butler's Pantry - Flipped)

First Floor

39 First Floor Floorplan (Butler's Pantry - Flipped)

Ground Floor

39 Ground Floor Floorplan (Bathroom upgrade)

Ground Floor

39 Ground Floor Floorplan (Bathroom upgrade - Flipped)

Ground Floor

39 Ground Floor Floorplan (Grand laundry)

First Floor

39 First Floor Floorplan (Grand laundry)

Ground Floor

39 Ground Floor Floorplan (Grand laundry - Flipped)

First Floor

39 First Floor Floorplan (Grand laundry - Flipped)

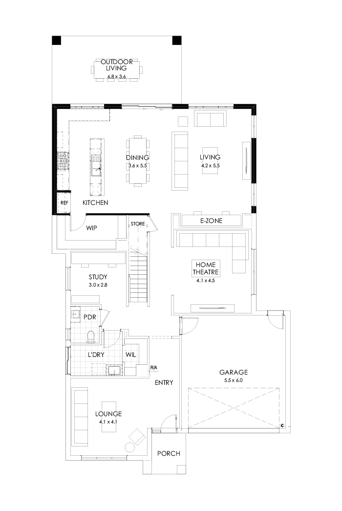
Ground Floor

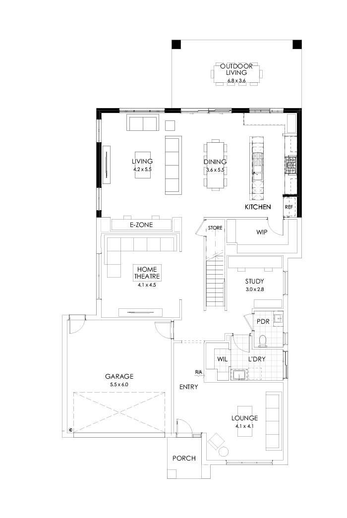
39 Ground Floor Floorplan (Outdoor living)

First Floor

39 First Floor Floorplan (Outdoor living)

Ground Floor

39 Ground Floor Floorplan (Outdoor living - Flipped)

First Floor

39 First Floor Floorplan (Outdoor living - Flipped)

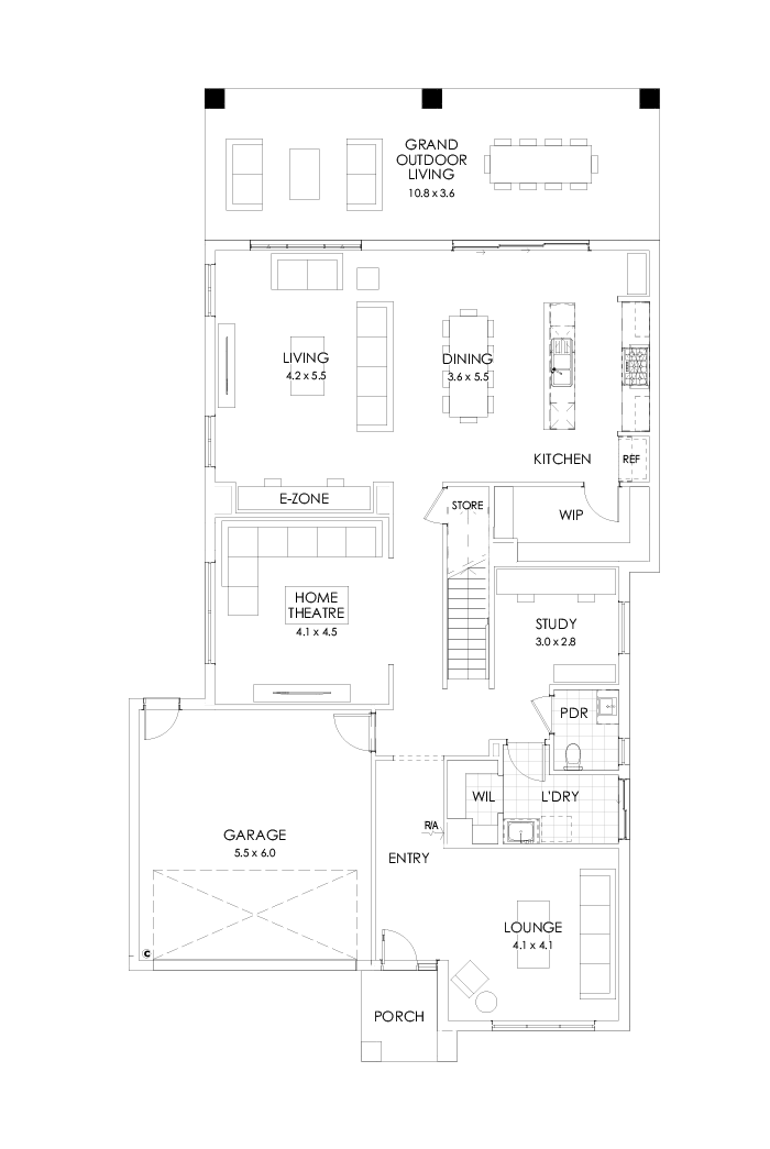
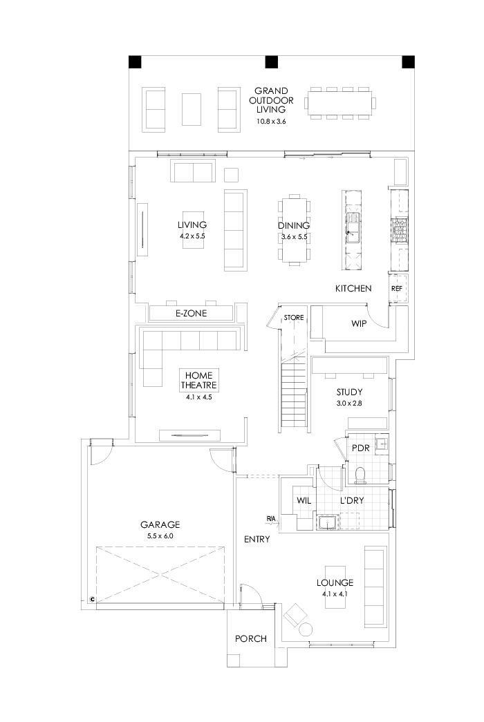
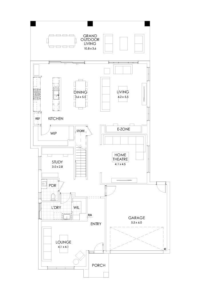
Ground Floor

39 Ground Floor Floorplan (Grand outdoor living)

First Floor

39 First Floor Floorplan (Grand outdoor living)

Ground Floor

39 Ground Floor Floorplan (Grand outdoor living - Flipped)

First Floor

39 First Floor Floorplan (Grand outdoor living - Flipped)

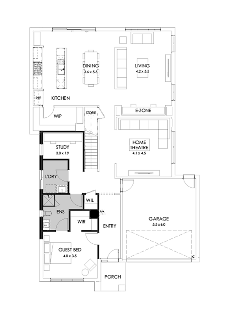
Ground Floor

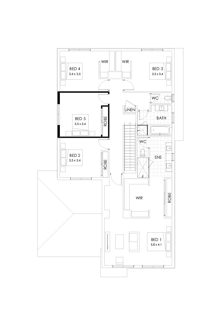
39 Ground Floor Floorplan (Guest bedroom)

First Floor

39 First Floor Floorplan (Guest bedroom)

Ground Floor

39 Ground Floor Floorplan (Guest bedroom - Flipped)

First Floor

39 First Floor Floorplan (Guest bedroom - Flipped)

Ground Floor

39 Ground Floor Floorplan (Powder room)

First Floor

39 First Floor Floorplan (Powder room)

Ground Floor

39 Ground Floor Floorplan (Powder room - Flipped)

First Floor

39 First Floor Floorplan (Powder room - Flipped)

Ground Floor

39 Ground Floor Floorplan (Alternate kitchen)

First Floor

39 First Floor Floorplan (Alternate kitchen)

Ground Floor

39 Ground Floor Floorplan (Alternate kitchen - Flipped)

First Floor

39 First Floor Floorplan (Alternate kitchen - Flipped)

Ground Floor

39 Ground Floor Floorplan (Shower to powder)

First Floor

39 First Floor Floorplan (Shower to powder)

Ground Floor

39 Ground Floor Floorplan (Shower to powder - Flipped)

First Floor

39 First Floor Floorplan (Shower to powder - Flipped)

Design Options

Not all design options can be combined. Your New Homes Consultant can advise.

Listed price refers to building in Melbourne and the surrounding areas – . Selected areas may incur an area-specific surcharge for Knockdown Rebuild projects. Price includes standard floorplan with Modern façade option excluding “Limited Edition Homes”. Images are for illustrative purposes only and may depict upgrade options and homes as displayed. Some images may also depict features not supplied by Boutique Homes including landscaping, pools, water features, window furnishings, fireplaces, wall furnishes and finishes, cladding, in built joinery, decorative lighting, décor and furniture. Contact a New Homes Consultant for specification details & more information.
Disclaimer © 2026, all plans are protected by copyright and are owned by ABN Group (VIC) Pty Ltd

Standard Premium Inclusions

Sink & mixer

Deluxe double bowl stainless steel sink

Oven

Fisher & Paykel 900mm wide in-built oven

Rangehood

Fisher & Paykel 900m wide rangehood

Cooktop

Fisher & Paykel 900m wide in-built cooktop

Benchtop

40mm Crystalline silica-free benchtops including island bench

Pantry

Walk-in pantry with hinged door and four melamine shelves

Splashback

Tiled splashback including behind rangehood

Cupboards

White lined kitchen cupboards with an extensive range of designer cupboard handles to choose from

Drawers

Soft close drawers to all kitchen, laundry and vanity drawers and doors, including two banks of pot drawers

Overhead Cupboards

Laminate overhead cabinets adjacent to rangehood and above fridge space

Provisions

Dishwasher and microwave provision

Flooring

Quality floor coverings throughout. Carpet to bedrooms with 7mm underlay, tiles to wet areas and timber look flooring to entry and living areas.

Ceilings

2550mm high ceilings to ground floor

Outdoor living

Integrated outdoor living under main roof area, perfect for bringing the outdoors indoors (design specific)

Aluminium doors

Aluminium recessed stacking or sliding doors to outdoor living or backyard (design specific)

Internal doors

2040mm flush panel internal doors

Lighting & Power

Ample lights and double power points throughout

Skirting & Architraves

75mm scotia cornice and 67mm skirting and architrave throughout

LED downlights

LED downlights to entry, living, dining and kitchen, batten lights to the remainder of the home

Heating & Cooling

Gas ducted heating with programmable thermostat

Linen Cupboard

Linen cupboard with door and four white melamine shelves

Double Storey Homes

Enclosed staircase with carpeted tread and rises, painted handrail and stringers and dwarf wall to first floor (design specific)

Mirror

Polished edge mirrors above all vanity benchtops to match height of shower screen

Obscure glazing

Obscure privacy glazing to all powder, bathroom, ensuite and WC windows (design specific)

Double vanity (design specific)

Double vanity with 20mm Crystalline silica-free benchtops to master ensuite (design specific) & single vanity with 20mm Crystalline silica-free benchtop to main bathroom and powder room (design specific)

Flooring

Your choice of ceramic tiling to floors of ensuite, bathroom, powder room (design specific) and laundry

Shower

Showers with 2100mm high wall tiling and 2000mm high semi frameless shower screen.

Cupboards

White lined cupboards and drawers (design specific) with designer handles

Tapware

Quality chrome tapware included throughout home

Basin

Inset vitreous china basins

Skirtings

100mm tiled skirting to ensuite, bathroom, powder room (design specific) and laundry

Bath

Acrylic bath to main bathroom (design specific)

Exhaust Fan

Exhaust fan with timer delay switch to bathroom

Towel Rail

Chrome towel rail to bathroom

Facade

Premium façade with rendered feature, eaves to front of single storey homes and top floor of double storey homes (Viva facade shown)

Garage

Remote sectional garage door - includes two remotes

Roof

Concrete roof tiles

Double glazing

Aluminium double glazed awning windows and recessed sliding doors throughout the home (design specific)

Fascia & barge

Metal fascia and barge, gutter and downpipes

Brick Cladding

Brick or rendered lightweight cladding above all external doors and windows (design specific)

Floor

Minimum 4m2 porch with integrated concrete slab and slimline awning windows (design specific)

Bricks

Choose from a wide range of quality clay bricks, standard to single storey homes and the ground floor of double storey homes.

Windows

Quality aluminium windows with locks, energy efficient weather seals to all openings and deadlocks to all sliding doors, windows and front door

Hot water system

Solar hot water system with storage tank, two roof mounted collectors and continuous mains pressure gas booster

Front Door

Modern feature front entry door

Internal access

Internal access door from garage to home

Images are indicative only and may depict upgraded fixtures, finishes, features and landscaping such as upgraded front door, marble benchtops, waterfall bench ends or upgraded Caesarstone, timber bi-fold or sliding doors, planter boxes, fencing, barbecues and fireplaces not included in standard pricing specified. Limited Edition Homes have additional upgrades that are not reflected.  For detailed pricing and information regarding our standard inclusions, please speak to a New Homes Consultant. Boutique Homes reserves the right to alter products and brands included without notice for items of similar value and quality.

Home and land packages featuring the Ascot

Explore customer homes

Testimonials

A

Aurelie

Exceptional Service!

We are very happy we chose Boutique Homes. Our New Home consultants Brett Morrissy and Cass did an exceptional job at helping us finding the right house for us. Brett immediately understood what we were looking for and he was very helpful. He was very professional, approachable and available, he definitely made the entire pre-start process much easier for us. We highly recommend working with him!

G

Gurpartap

“The One” builder with great team and professional attitude

Thoughts of constructing first dream home fills once heart with joy, excitement and on the other sends a chill down the spin with anxious thoughts and million questions. You juggle from one floor plan to the other, visit hundreds of display home, chat with enormous builder's representative, go through an exhaustive list of inclusions which makes you even more confused and exposed.

But, after discovering and exploring Boutique homes it seemed like a cake walk. We are at an early stages of building HAVANA 32 (on display@Botanica in MICKLEHAM). All thanks to our new homes consultant Surinder Mehta, that we have got what we wished for to build our first home. Surinder, made the initial phase very easy, he gave our needs the ears we wanted, explained things to the very basics which in-turn makes you confident and affirmative. Surinder, is an expert in the field, he answers all your queries very patiently, addresses your needs rather then wants and makes you feel that you are with the right builder and in right hands.

Boutique Homes is a quality driven builder which gives you the satisfaction you need when building "The First One" and the same culture filters through the employee's especially Mr. Surinder Mehta, who did not leave any stone un-turned to win our confidence and support by delivering incomparable upgrades while adhering to our financial boundaries.

We are self-assured that the building process will be a smooth one and would take this opportunity to urge all FHOB to give Boutique Home a go and they will be able to cater your needs with highest quality standards compared to the counterparts.

J

Josh A

Excellent customer service from Boutique Homes in Ballarat

My wife and I have just signed up to build with Boutique Homes in Ballarat. So far we have been very impressed with the responsiveness, professionalism and flexibility. To be honest, I was a bit sceptical about such things with volume builders, but to date, Boutique have proved me wrong. A huge shout out to James Belsar, the Ballarat New Homes Consultant—an all round lovely bloke that has made the process stress free.

C

Casey & Josh

Awesome experience

We are building our first home and so far we have had the best experience our building consultant Stuart Doak has been amazing very informative. We are building the Oslo 29 and we absolutely love it, boutique homes have a high quality building standard. Other builders their upgrades are Boutique homes standard house inclusions and they make such beautiful homes.

I couldn't recommend Boutiques Homes more to anyone if I could give 6 stars I would. Anyone looking for a builder I highly suggest you build with boutique homes easy process and ask for Stuart Doak.

J

Jot

Glad We have chosen Boutique Homes

Building home as a first home owner is like a dream. We visited all display homes, looked at inclusions, quality of products that are being used. But we could not find a match for Boutique. It excelled on our graph of customer satisfaction, tailoring according to our needs. Special thanks to Morgan (new home consultant), who is the first among all the reasons behind us choosing Boutique. We started with some other plan and ended with something completely different. But Morgan listened to us, to our dreams. No doubt there are many other competing builders, we visited the majority of them. But Boutique was the one for us. Luckily we found the one.

I must say after meeting other sales consultants from 2 other renowned builders at the moment in the market that Boutique is lucky to have a consultant like Morgan. She went far and beyond to assist us. I got health professional discount on our base price which gave us room for more upgrades while sticking to our budget. Our meeting was extended for long due to changes to our plan. But Morgan helped us to get everything fixed and upfront with 100% transparency, no hidden costs.

We are super excited for next steps. Initial paperwork done. Looking forward to our color appointments. I would highly recommend first home builders and owners to visit and browse their display homes and you will see the great difference in quality of things they use in their standard inclusion compared to others.