Barcelona 32 with Southamptons Facade
Images for illustrative purposes only. You’re viewing pricing based on building in your selected build zone. Selected areas may incur an area-specific surcharge for Knockdown Rebuild projects. Contact a New Homes Consultant for specification details & more information.
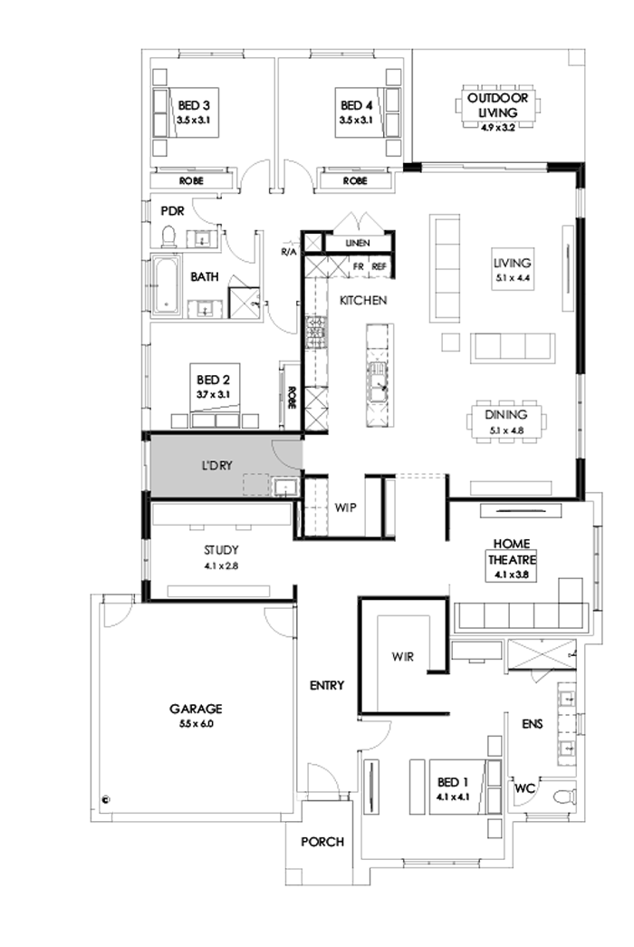
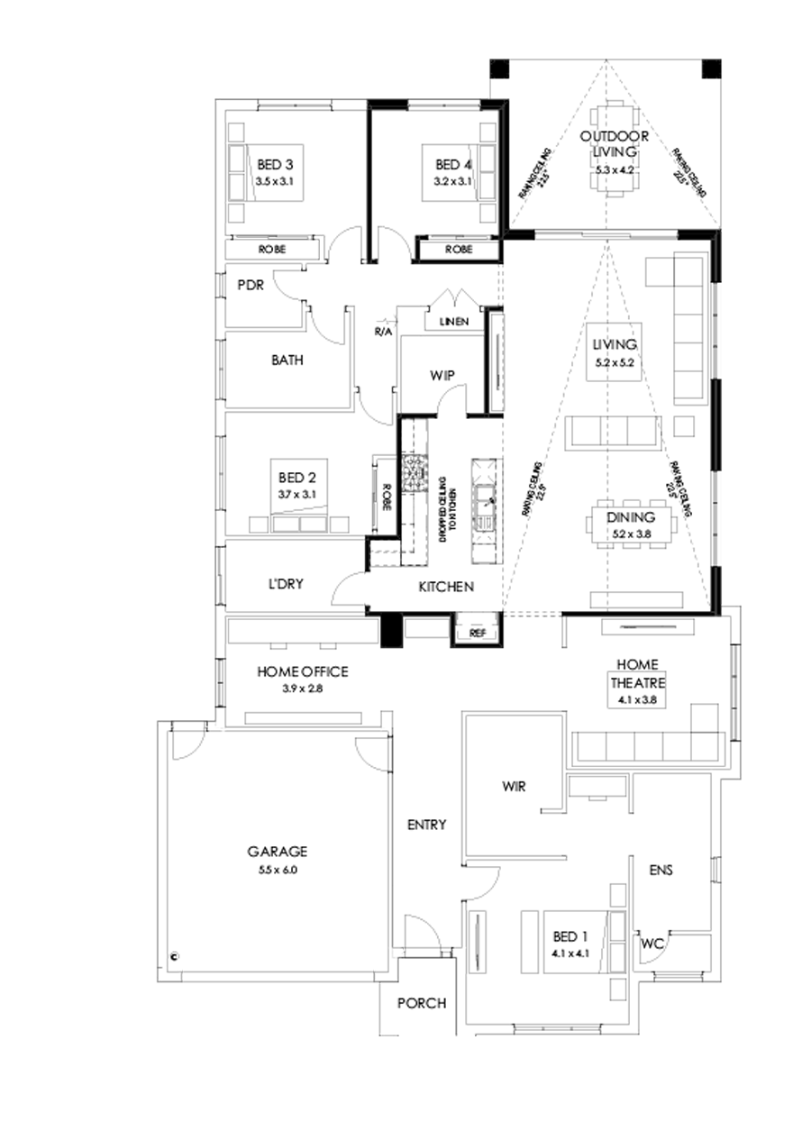
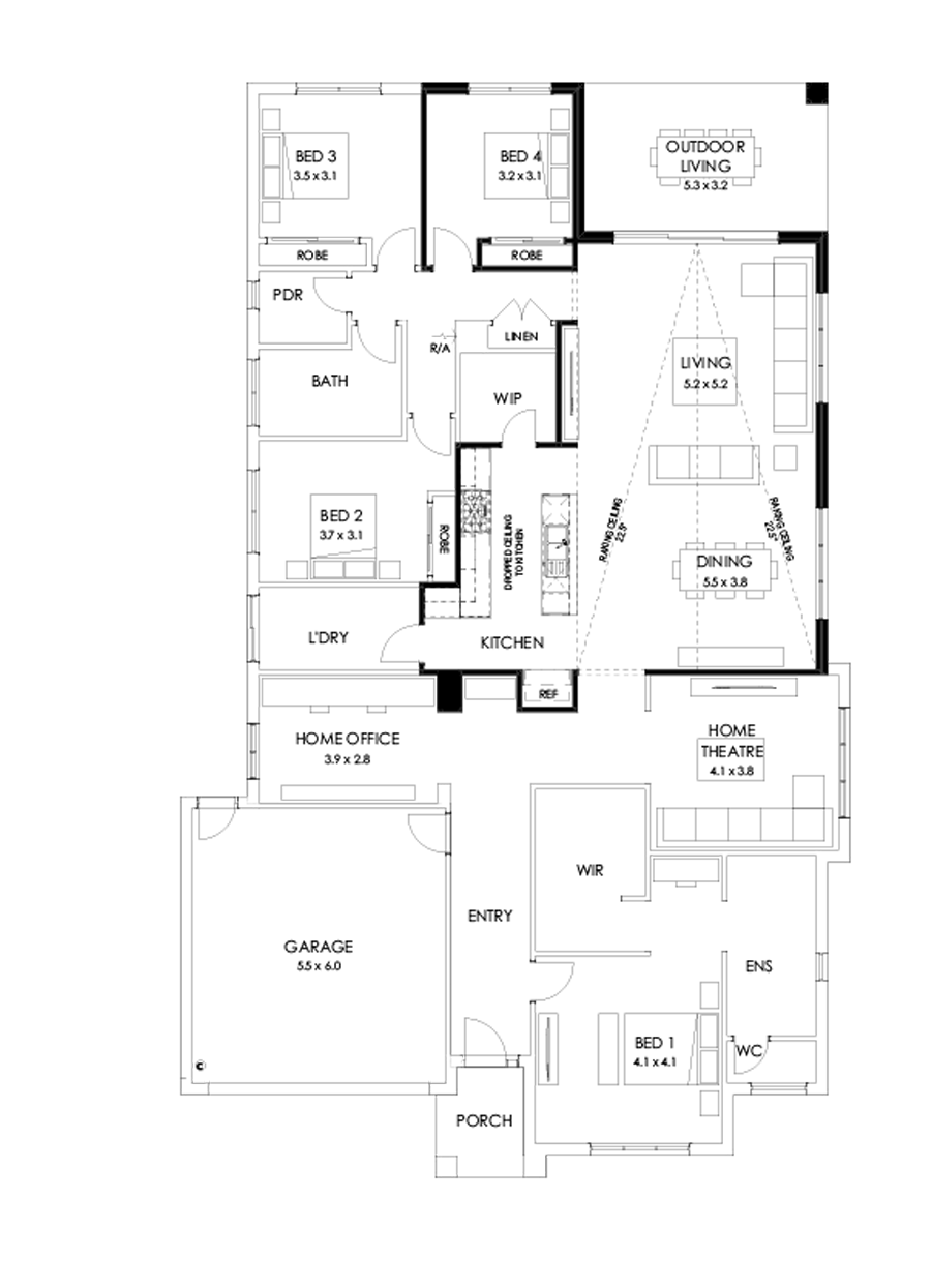
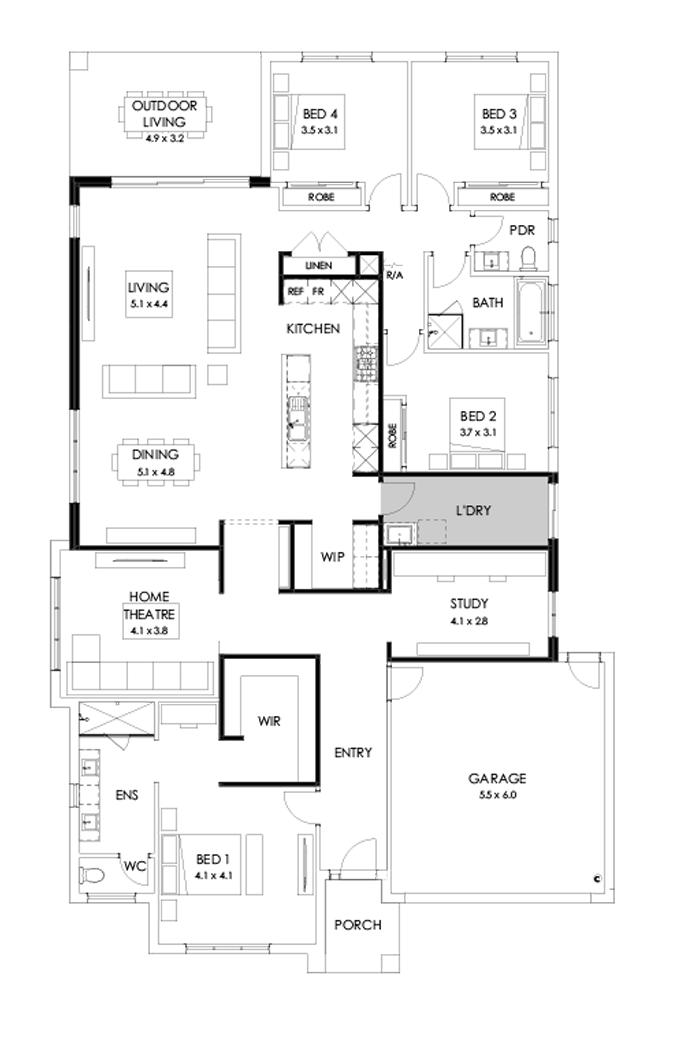
Barcelona 32
Display Home - Kaduna Park estate Estate
14 Clements Street, Officer South
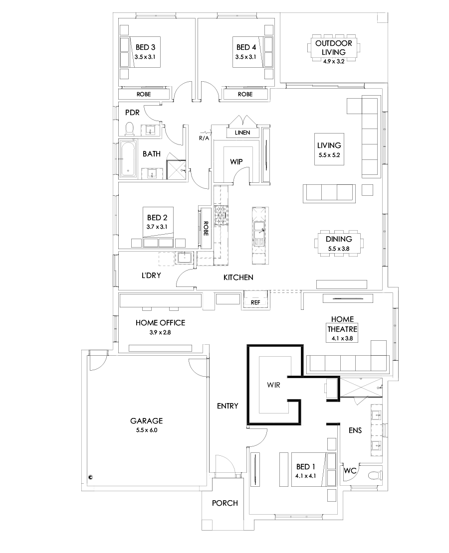
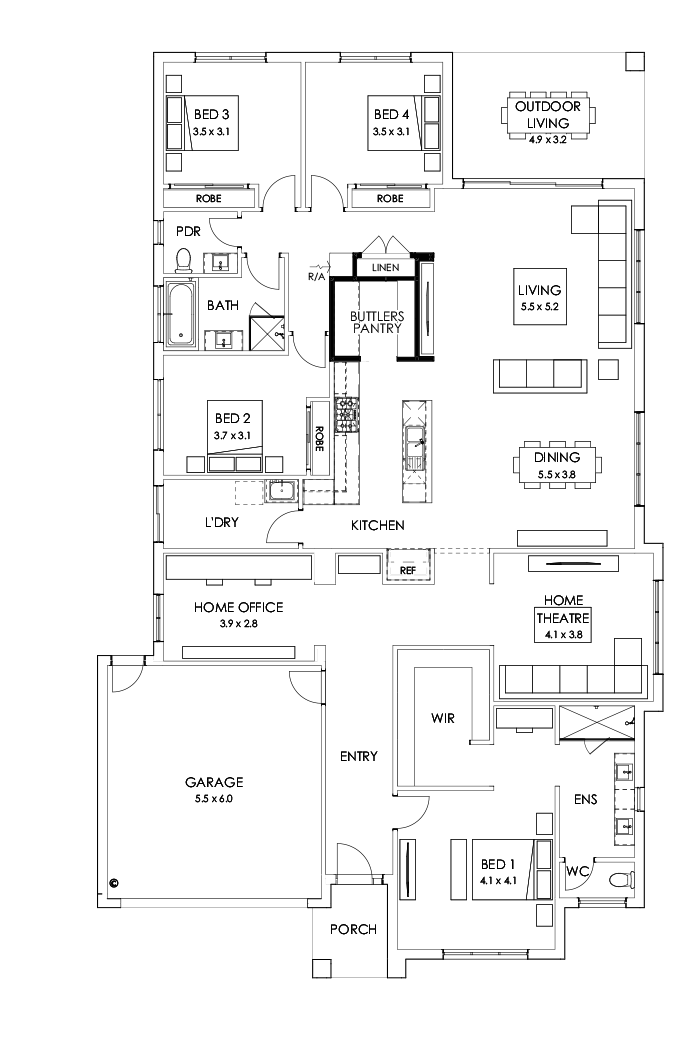
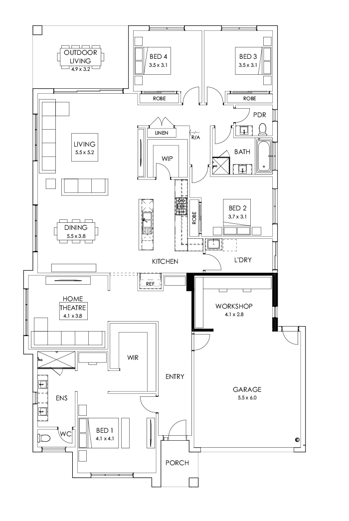
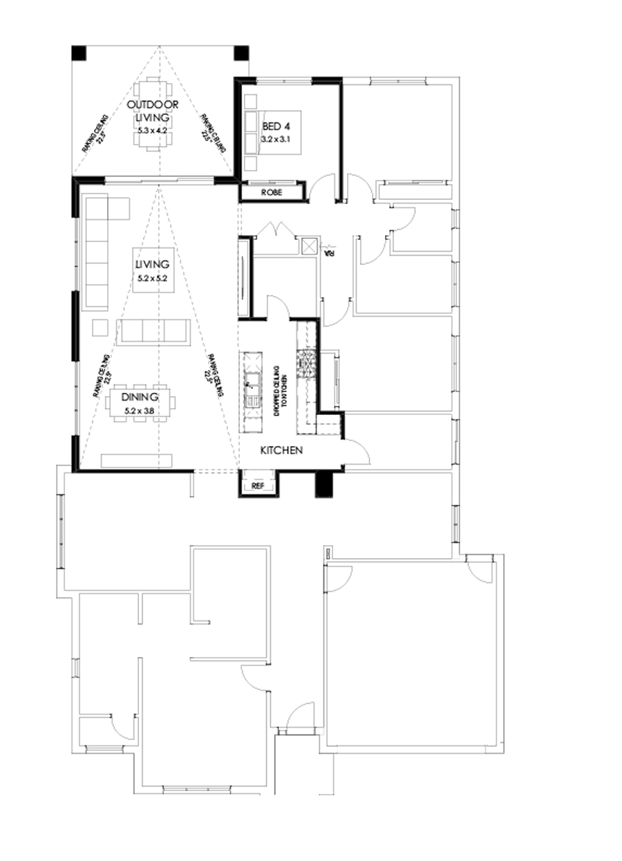
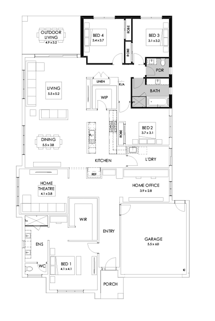
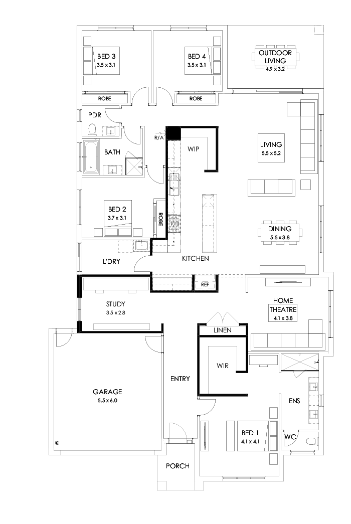
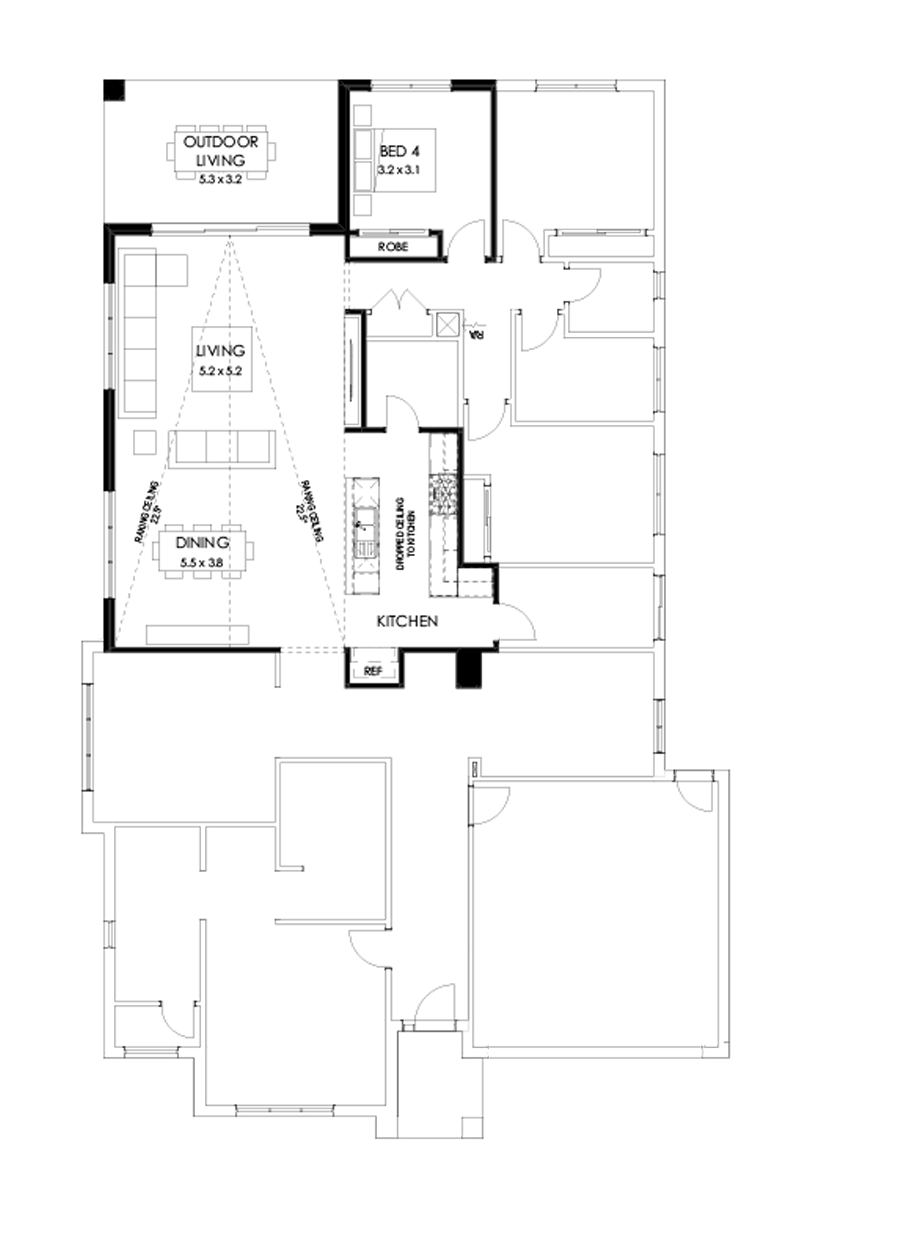
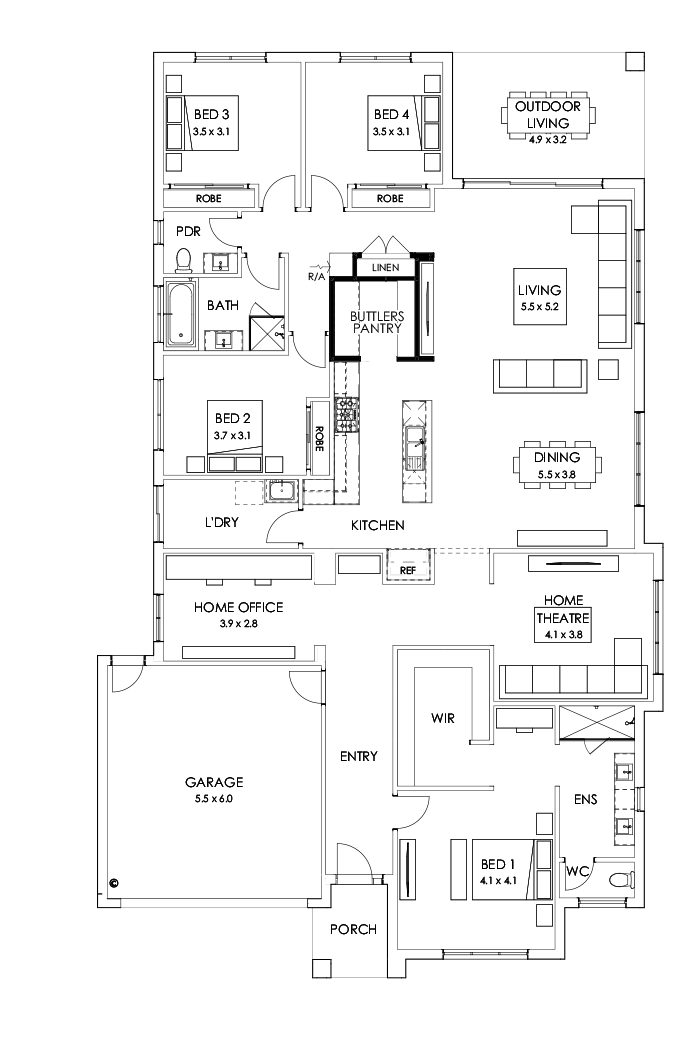
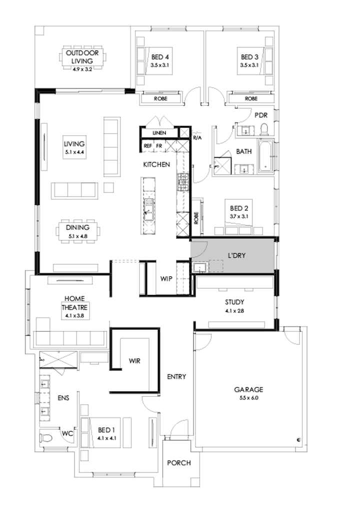
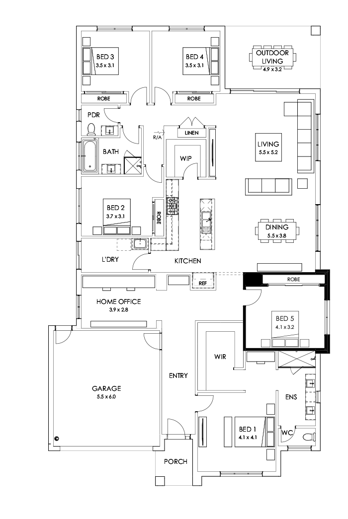
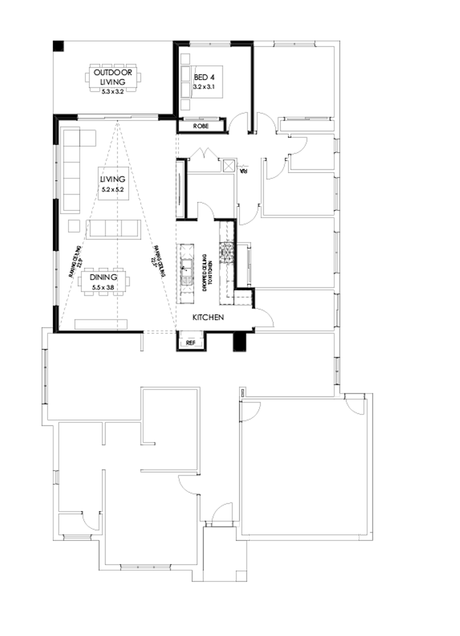
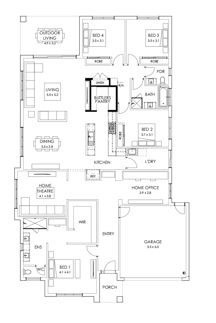
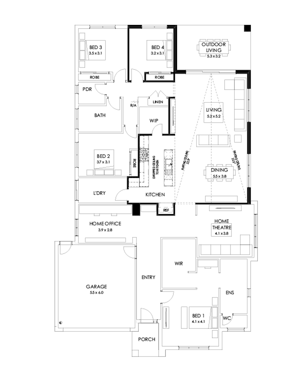
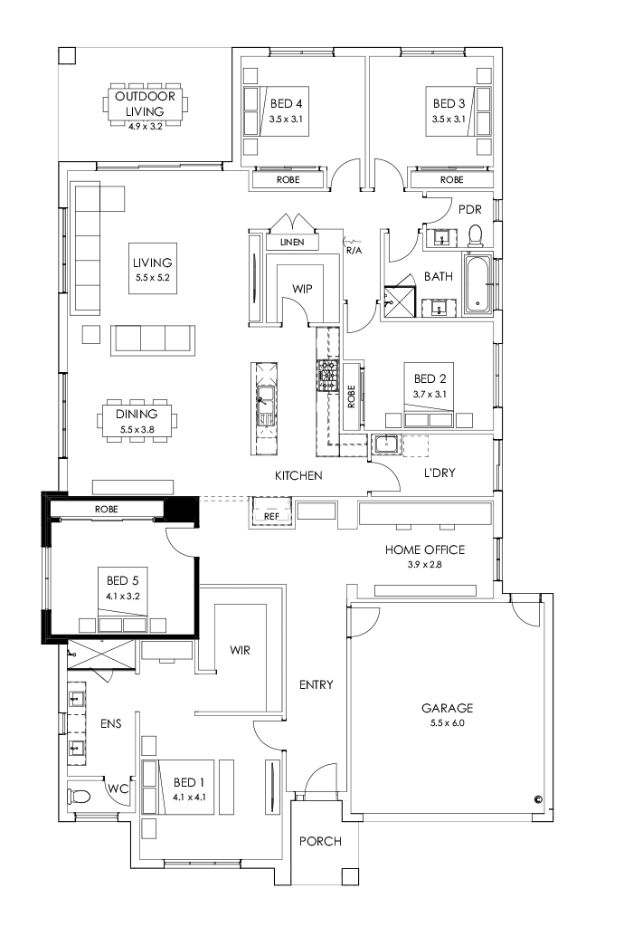
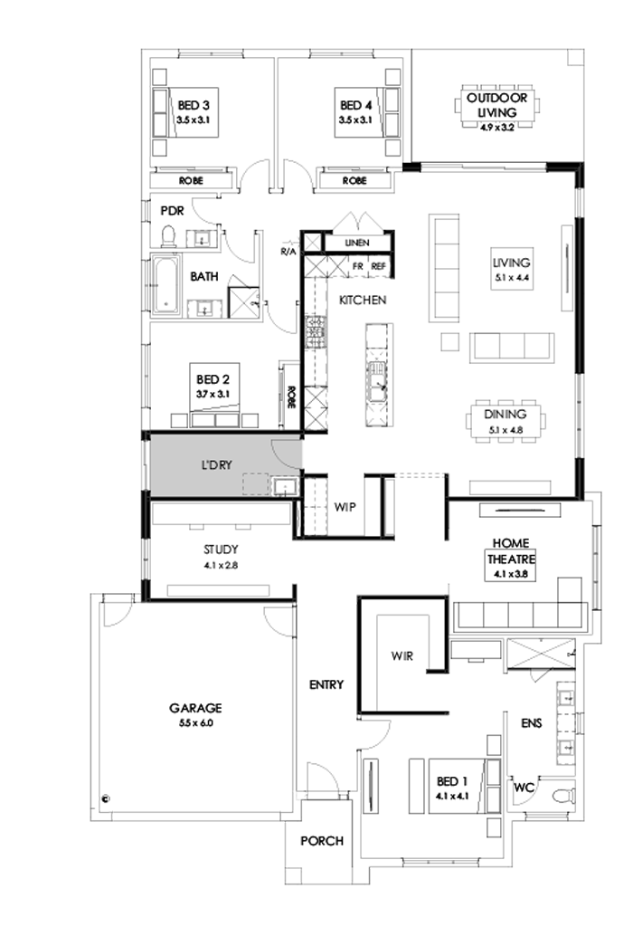
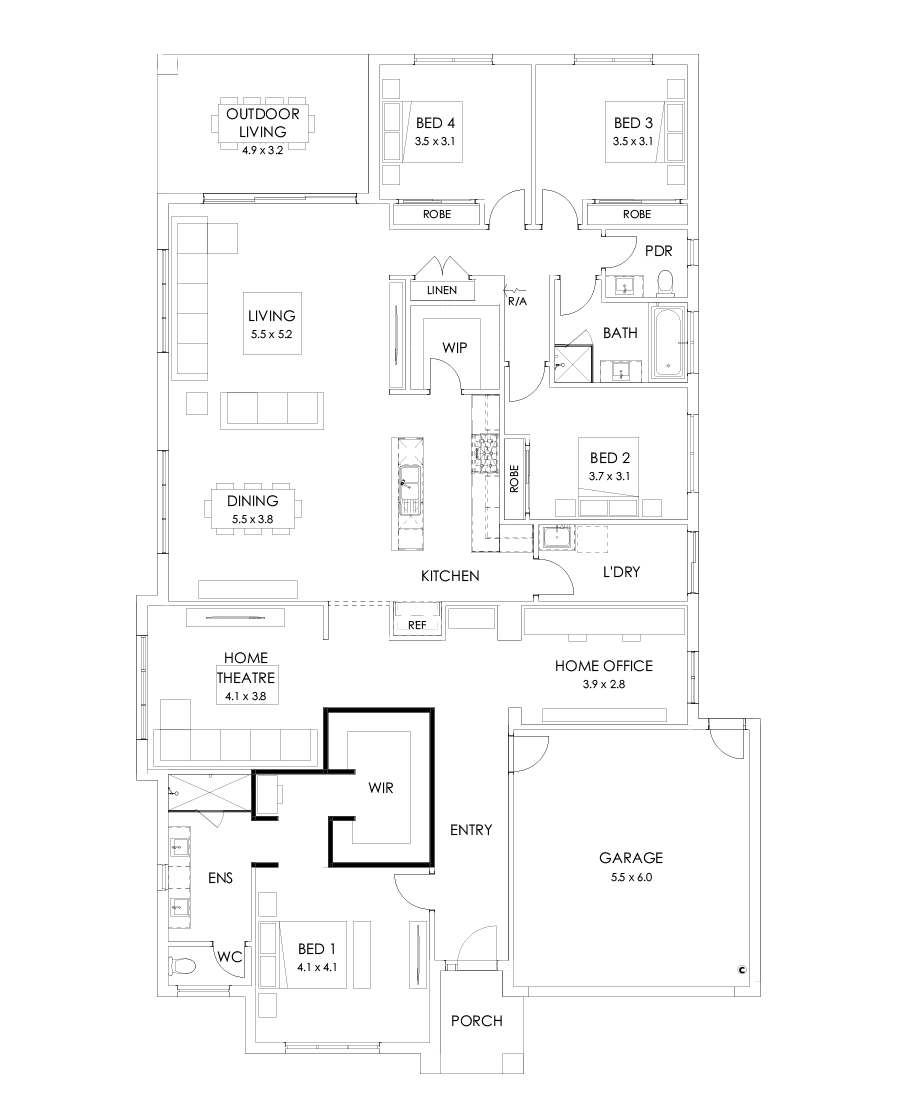
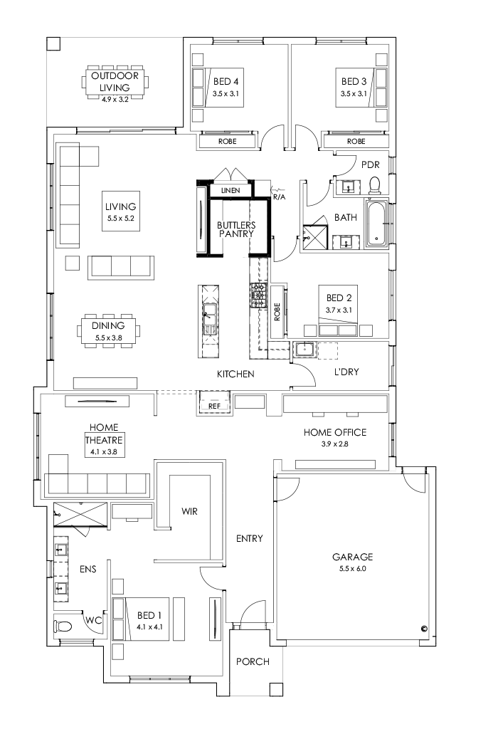
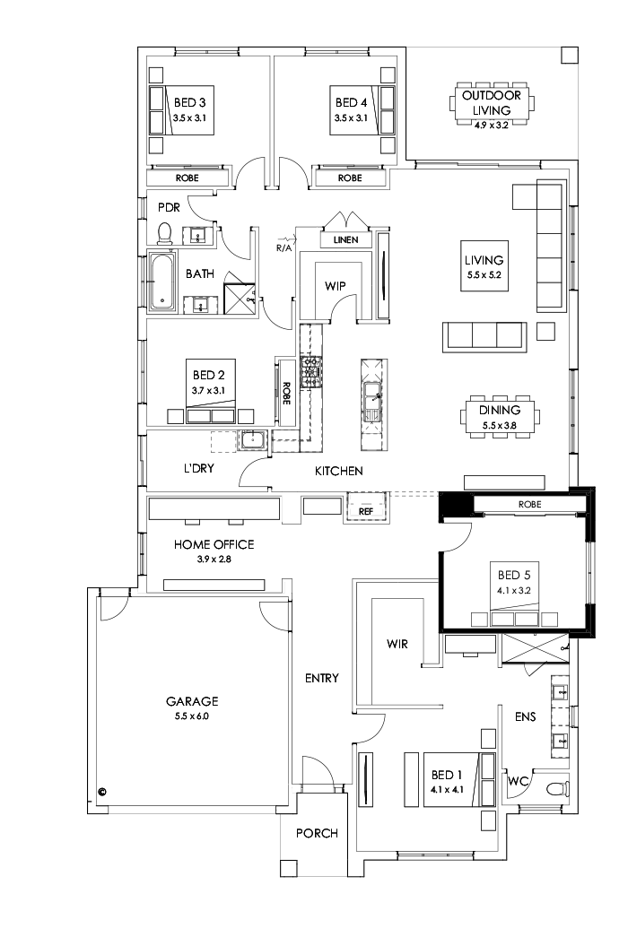
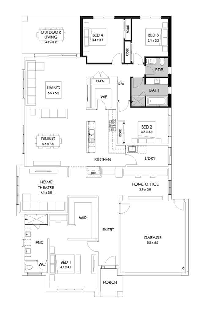
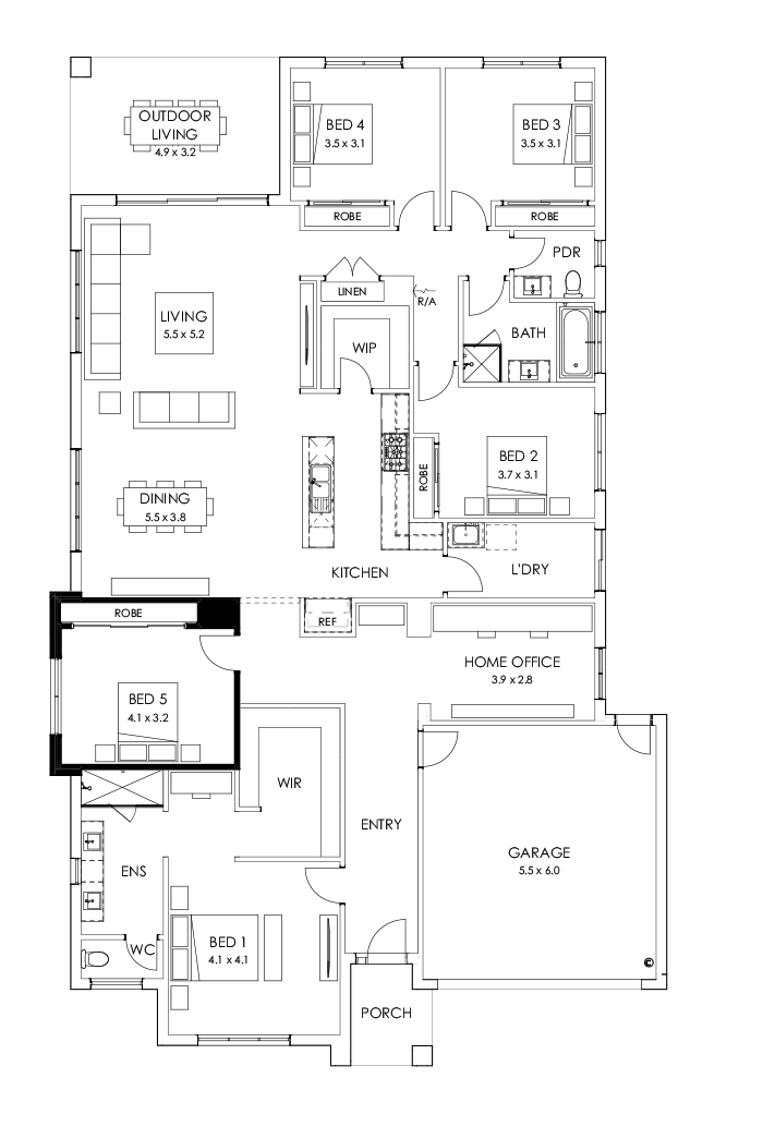
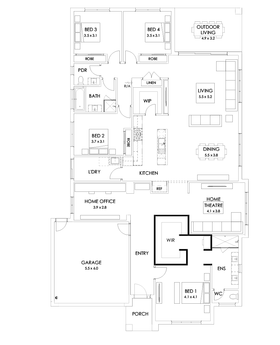
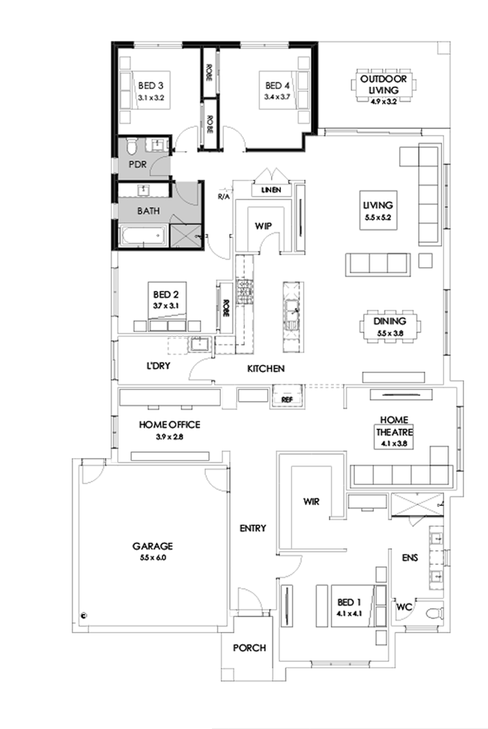
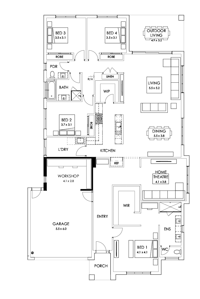
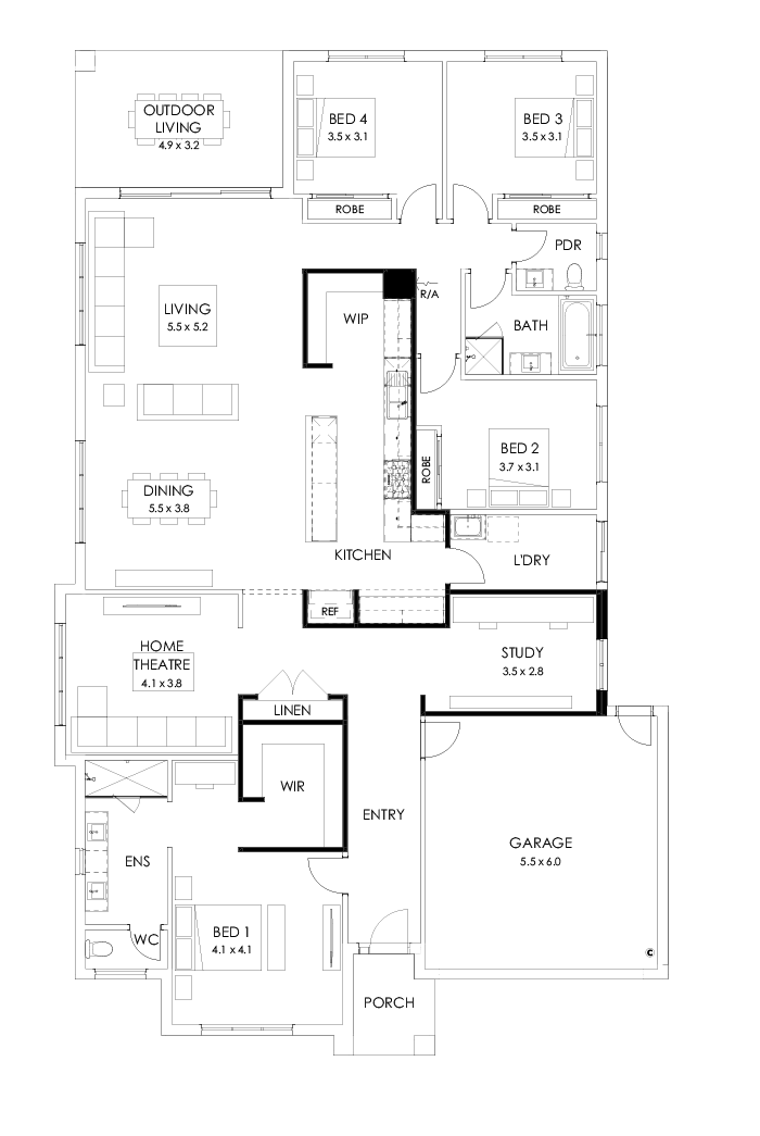
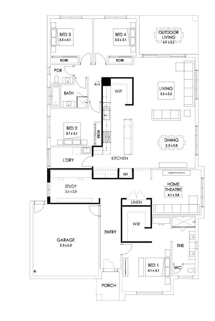
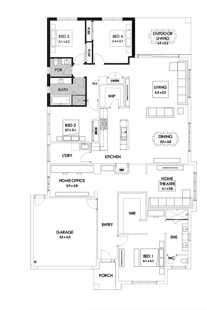
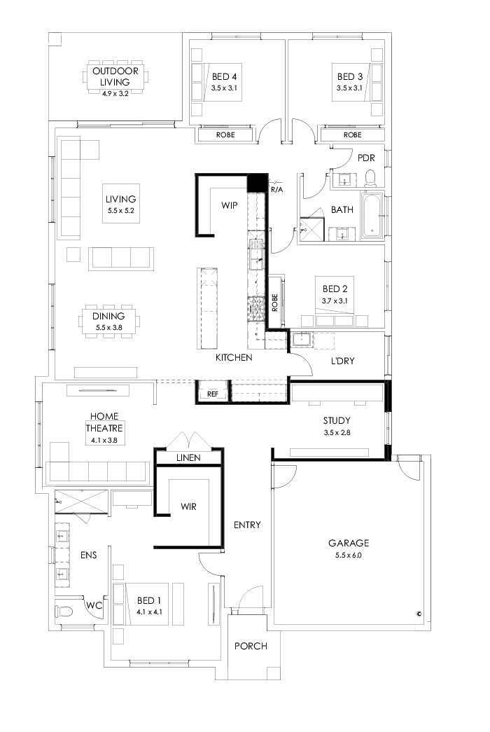
The Barcelona offers stylish design and flexible functionality at any block size. With its huge windows and high ceilings, your home is bright and inviting.
Positioned near the entrance, the master bedroom promises a tranquil retreat separated from the rest of the home. The clever use of space allows for a spacious walk-in robe, and an ensuite with double vanity, large shower and separate WC.
The kitchen and expansive living areas radiate a sense of warmth and openness that inspires and delights. Gourmet chefs will adore the butler’s pantry, wraparound bench and versatile island bench. And the outdoor living area is ready to enjoy in all weather, accessed by glass sliding doors and sheltered by the roofline.
This display home is compliant with the National Construction Code 2019 and does not reflect items that apply to all new homes in line with the National Construction Code 2022, such as Livable Housing Design and 7-star energy efficiency requirements. Please contact your New Homes Consultant for further information.
Enquire now to book an appointment
Thank You!
A New Homes Consultant will be in touch soon
14 Clements Street, Officer South - Kaduna Park estate Estate
Open Times
-
Monday
Closed -
Tuesday
Closed -
Wednesday
Closed -
Thursday
By appointment -
Friday
By appointment -
Saturday
Closed -
Sunday
Closed - If you would like to book an appointment, please submit an enquiry or contact Ivan Leon on 0430 941 340.
Visit nearby display homes
Explore Parkville 31 - Manor facades & design options
Parkville 31 - Manor
24 Soho Boulevard,
Berwick
Minta
-
View variation 27
-
View variation 29
-
View variation 31
Explore Airlie 38 - Hamptons facades & design options
Airlie 38 - Hamptons
From
45 Creekbridge Street,
Craigieburn
Highlands
-
View variation 30
-
View variation 33
-
View variation 38
-
View variation 40
Explore Collins 31 & 30 facades & design options
Collins 31 & 30
Bentleigh
-
View variation 31 & 30
Explore Airlie 30 - Mode facades & design options
Airlie 30 - Mode
173 High Street, Kangaroo Flat
Bendigo Display Centre
-
View variation 30
-
View variation 33
-
View variation 38
-
View variation 40
Barcelona 32
Fixed $381,800
March 2026 pricing shown. Pricing is based on a site that’s titled. Alternate pricing applies for building in central Melbourne & Mornington Peninsula regions. Find out more.
Specifications
- Home width 14.51m
- Home length 23.75m
- Min. lot width 16.00m
- Min. lot length 32.00m
Design Options
Not all design options can be combined. Your New Homes Consultant can advise.Listed price refers to building in Melbourne and the surrounding areas – . Selected areas may incur an area-specific surcharge for Knockdown Rebuild projects. Price includes standard floorplan with Modern façade option excluding “Limited Edition Homes”. Images are for illustrative purposes only and may depict upgrade options and homes as displayed. Some images may also depict features not supplied by Boutique Homes including landscaping, pools, water features, window furnishings, fireplaces, wall furnishes and finishes, cladding, in built joinery, decorative lighting, décor and furniture. Contact a New Homes Consultant for specification details & more information.
Disclaimer © 2026, all plans are protected by copyright and are owned by ABN Group (VIC) Pty Ltd
Standard Premium Inclusions
Kitchen
Sink & mixer
Deluxe double bowl stainless steel sink
Oven
Fisher & Paykel 900mm wide in-built oven
Rangehood
Fisher & Paykel 900m wide rangehood
Cooktop
Fisher & Paykel 900m wide in-built cooktop
Benchtop
40mm Crystalline silica-free benchtops including island bench
Pantry
Walk-in pantry with hinged door and four melamine shelves
Splashback
Tiled splashback including behind rangehood
Cupboards
White lined kitchen cupboards with an extensive range of designer cupboard handles to choose from
Drawers
Soft close drawers to all kitchen, laundry and vanity drawers and doors, including two banks of pot drawers
Overhead Cupboards
Laminate overhead cabinets adjacent to rangehood and above fridge space
Provisions
Dishwasher and microwave provision
Living
Flooring
Quality floor coverings throughout. Carpet to bedrooms with 7mm underlay, tiles to wet areas and timber look flooring to entry and living areas.
Ceilings
2550mm high ceilings to ground floor
Outdoor living
Integrated outdoor living under main roof area, perfect for bringing the outdoors indoors (design specific)
Aluminium doors
Aluminium recessed stacking or sliding doors to outdoor living or backyard (design specific)
Internal doors
2040mm flush panel internal doors
Lighting & Power
Ample lights and double power points throughout
Skirting & Architraves
75mm scotia cornice and 67mm skirting and architrave throughout
LED downlights
LED downlights to entry, living, dining and kitchen, batten lights to the remainder of the home
Heating & Cooling
Gas ducted heating with programmable thermostat
Linen Cupboard
Linen cupboard with door and four white melamine shelves
Double Storey Homes
Enclosed staircase with carpeted tread and rises, painted handrail and stringers and dwarf wall to first floor (design specific)
Bathroom
Mirror
Polished edge mirrors above all vanity benchtops to match height of shower screen
Obscure glazing
Obscure privacy glazing to all powder, bathroom, ensuite and WC windows (design specific)
Double vanity (design specific)
Double vanity with 20mm Crystalline silica-free benchtops to master ensuite (design specific) & single vanity with 20mm Crystalline silica-free benchtop to main bathroom and powder room (design specific)
Flooring
Your choice of ceramic tiling to floors of ensuite, bathroom, powder room (design specific) and laundry
Shower
Showers with 2100mm high wall tiling and 2000mm high semi frameless shower screen.
Cupboards
White lined cupboards and drawers (design specific) with designer handles
Tapware
Quality chrome tapware included throughout home
Basin
Inset vitreous china basins
Skirtings
100mm tiled skirting to ensuite, bathroom, powder room (design specific) and laundry
Bath
Acrylic bath to main bathroom (design specific)
Exhaust Fan
Exhaust fan with timer delay switch to bathroom
Towel Rail
Chrome towel rail to bathroom
External
Facade
Premium façade with rendered feature, eaves to front of single storey homes and top floor of double storey homes (Viva facade shown)
Garage
Remote sectional garage door - includes two remotes
Roof
Concrete roof tiles
Double glazing
Aluminium double glazed awning windows and recessed sliding doors throughout the home (design specific)
Fascia & barge
Metal fascia and barge, gutter and downpipes
Brick Cladding
Brick or rendered lightweight cladding above all external doors and windows (design specific)
Floor
Minimum 4m2 porch with integrated concrete slab and slimline awning windows (design specific)
Bricks
Choose from a wide range of quality clay bricks, standard to single storey homes and the ground floor of double storey homes.
Windows
Quality aluminium windows with locks, energy efficient weather seals to all openings and deadlocks to all sliding doors, windows and front door
Hot water system
Solar hot water system with storage tank, two roof mounted collectors and continuous mains pressure gas booster
Front Door
Modern feature front entry door
Internal access
Internal access door from garage to home
Images are indicative only and may depict upgraded fixtures, finishes, features and landscaping such as upgraded front door, marble benchtops, waterfall bench ends or upgraded Caesarstone, timber bi-fold or sliding doors, planter boxes, fencing, barbecues and fireplaces not included in standard pricing specified. Limited Edition Homes have additional upgrades that are not reflected. For detailed pricing and information regarding our standard inclusions, please speak to a New Homes Consultant. Boutique Homes reserves the right to alter products and brands included without notice for items of similar value and quality.
Home and land packages featuring the Barcelona
Explore Barcelona 28 facades & design options
Barcelona 28
From $770,700
506 Sun Orchid Grove, Bannockburn
Somerset Estate
-
View variation 23
-
View variation 24
-
View variation 26
-
View variation 27
-
View variation 28
-
View variation 32
Explore Barcelona 26 facades & design options
Barcelona 26
Fixed $770,700
2227 Cadillacin Street, Sunbury
Kingsfield
-
View variation 23
-
View variation 24
-
View variation 26
-
View variation 27
-
View variation 28
-
View variation 32
Explore Barcelona 32 facades & design options
Barcelona 32
Fixed $919,300
126 Glenloch Loop, Gisborne
Rosalia
-
View variation 23
-
View variation 24
-
View variation 26
-
View variation 27
-
View variation 28
-
View variation 32
Explore Barcelona 27 facades & design options
Barcelona 27
From $753,840
1016 Karak Street, Drouin
Ferntree Ridge
-
View variation 23
-
View variation 24
-
View variation 26
-
View variation 27
-
View variation 28
-
View variation 32
Explore Barcelona 26 facades & design options
Barcelona 26
Fixed $761,600
1109 Yarrabee Street, Lara
Lara Lakes
-
View variation 23
-
View variation 24
-
View variation 26
-
View variation 27
-
View variation 28
-
View variation 32
Explore Barcelona 32 facades & design options
Barcelona 32
Fixed $1,014,300
713 Shearjoy Loop, Clyde North
Five Farms
-
View variation 23
-
View variation 24
-
View variation 26
-
View variation 27
-
View variation 28
-
View variation 32
Explore Barcelona 23 facades & design options
Barcelona 23
From $679,800
639 Louden Drive,
Lucas
Lucas
-
View variation 23
-
View variation 24
-
View variation 26
-
View variation 27
-
View variation 28
-
View variation 32
Explore Barcelona 23 facades & design options
Barcelona 23
From $594,900
99 Bradman Road, Newborough
North Quarter
-
View variation 23
-
View variation 24
-
View variation 26
-
View variation 27
-
View variation 28
-
View variation 32
Explore Barcelona 23 facades & design options
Barcelona 23
Fixed $722,200
5203 Domain Drive, Beveridge
Mandalay
-
View variation 23
-
View variation 24
-
View variation 26
-
View variation 27
-
View variation 28
-
View variation 32
Explore Barcelona 23 facades & design options
Barcelona 23
Fixed $715,900
2214 Tursuli Drive,
Truganina
Grandview
-
View variation 23
-
View variation 24
-
View variation 26
-
View variation 27
-
View variation 28
-
View variation 32
Explore Barcelona 27 facades & design options
Barcelona 27
Fixed $805,200
7018 Boundary Road,
Armstrong Creek
Banksia
-
View variation 23
-
View variation 24
-
View variation 26
-
View variation 27
-
View variation 28
-
View variation 32
Explore Barcelona 24 facades & design options
Barcelona 24
From $683,900
60 Castleknock Drive, Glengarry
Phoenix Park
-
View variation 23
-
View variation 24
-
View variation 26
-
View variation 27
-
View variation 28
-
View variation 32
Explore Barcelona 26 facades & design options
Barcelona 26
Fixed $669,000
305 Drift Road, Warragul
Lillifield
-
View variation 23
-
View variation 24
-
View variation 26
-
View variation 27
-
View variation 28
-
View variation 32
Explore customer homes
Testimonials
Jot
Glad We have chosen Boutique Homes
Building home as a first home owner is like a dream. We visited all display homes, looked at inclusions, quality of products that are being used. But we could not find a match for Boutique. It excelled on our graph of customer satisfaction, tailoring according to our needs. Special thanks to Morgan (new home consultant), who is the first among all the reasons behind us choosing Boutique. We started with some other plan and ended with something completely different. But Morgan listened to us, to our dreams. No doubt there are many other competing builders, we visited the majority of them. But Boutique was the one for us. Luckily we found the one.
I must say after meeting other sales consultants from 2 other renowned builders at the moment in the market that Boutique is lucky to have a consultant like Morgan. She went far and beyond to assist us. I got health professional discount on our base price which gave us room for more upgrades while sticking to our budget. Our meeting was extended for long due to changes to our plan. But Morgan helped us to get everything fixed and upfront with 100% transparency, no hidden costs.
We are super excited for next steps. Initial paperwork done. Looking forward to our color appointments. I would highly recommend first home builders and owners to visit and browse their display homes and you will see the great difference in quality of things they use in their standard inclusion compared to others.
Aurelie
Exceptional Service!
We are very happy we chose Boutique Homes. Our New Home consultants Brett Morrissy and Cass did an exceptional job at helping us finding the right house for us. Brett immediately understood what we were looking for and he was very helpful. He was very professional, approachable and available, he definitely made the entire pre-start process much easier for us. We highly recommend working with him!
Casey & Josh
Awesome experience
We are building our first home and so far we have had the best experience our building consultant Stuart Doak has been amazing very informative. We are building the Oslo 29 and we absolutely love it, boutique homes have a high quality building standard. Other builders their upgrades are Boutique homes standard house inclusions and they make such beautiful homes.
I couldn't recommend Boutiques Homes more to anyone if I could give 6 stars I would. Anyone looking for a builder I highly suggest you build with boutique homes easy process and ask for Stuart Doak.
Donjim
Amazing service, great inclusions
Brett in Fyansford was helpful from the very beginning and has made the process of our first home so easy. The inclusions that Boutique has as standard far surpass any other ‘volume’ builder. The process of choosing any upgrades was explained to us carefully and the whole process felt stress free. Couldn’t be happier with Boutique Homes.
Gurpartap
“The One” builder with great team and professional attitude
Thoughts of constructing first dream home fills once heart with joy, excitement and on the other sends a chill down the spin with anxious thoughts and million questions. You juggle from one floor plan to the other, visit hundreds of display home, chat with enormous builder's representative, go through an exhaustive list of inclusions which makes you even more confused and exposed.
But, after discovering and exploring Boutique homes it seemed like a cake walk. We are at an early stages of building HAVANA 32 (on display@Botanica in MICKLEHAM). All thanks to our new homes consultant Surinder Mehta, that we have got what we wished for to build our first home. Surinder, made the initial phase very easy, he gave our needs the ears we wanted, explained things to the very basics which in-turn makes you confident and affirmative. Surinder, is an expert in the field, he answers all your queries very patiently, addresses your needs rather then wants and makes you feel that you are with the right builder and in right hands.
Boutique Homes is a quality driven builder which gives you the satisfaction you need when building "The First One" and the same culture filters through the employee's especially Mr. Surinder Mehta, who did not leave any stone un-turned to win our confidence and support by delivering incomparable upgrades while adhering to our financial boundaries.
We are self-assured that the building process will be a smooth one and would take this opportunity to urge all FHOB to give Boutique Home a go and they will be able to cater your needs with highest quality standards compared to the counterparts.
Find all your inspiration with Boutique Life
Boutique Life is your inspiration hub with countless articles featuring customer homes, new designs and the latest Boutique news.
Meet our design experts & be inspired
Boutique is proud to be a leader in Design.
A strong design aesthetic is at the core of everything we create at Boutique. Rest easy knowing you have an expert team behind your new home, but also there to guide you through your build.
Sorry we missed you
Select from the options below: